Здам довгостроково офісне приміщення
Київ, р-н Солом'янський, Вацлава Гавела бул., 6Б
ID: 5243007
527 844 грн
К-ть приміщень
12
Поверх
4/7
Тип стін
цегла
Загальна площа
1000 м2
Стан
житлове
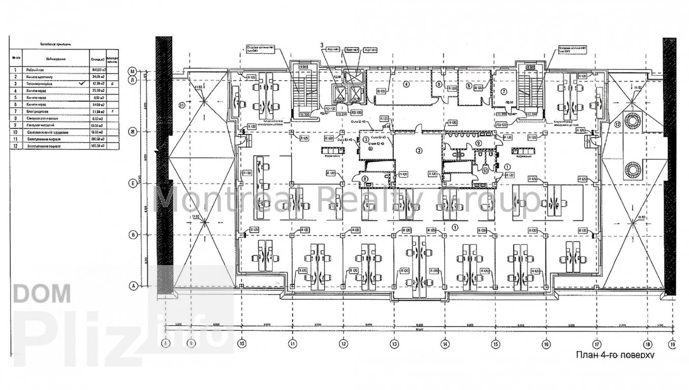
Аренда современного офиса в новом Бизнес Центре класса " В + " по адресу Бульвар Валцава Гавела. Этаж 4/7 этажного нежилого здания. Общая площадь офиса 1007 м2. Фотографии и планировка соответстуют реальности. Планировка - open space + рабочие зоны + кабинеты/переговорные, кухня, санузлы, кладовки, серверная. Состояния - современный ремонт и мебель. Офис оснащен всем необходимым для комфортной и безопасной работы. Отличная транспортная развязка, в пешей доступности остановка общественного транспорта и станция метро Берестейская 15 минут пешком.Вакантность в этом БЦ - 1 406 м2, 1007 м2, 1029 м2.Оснащения Бизнес Центра:1. Система приточно-вытяжной вентиляции.2. Система чиллер-фанкойл.3. Автономное отопление.4. Оптоволоконные линии связи.5. Система контроля доступа.6. Противопожарная система безопасности.7. Круглосуточная физическая охрана.8. Видеонаблюдение (периметр, холл, лифты, места общего пользования, парковка).9. Лифты - 3 шт., фирмы OTIS.10. Подземный паркинг и наземная парковка.11. Генератор.Коммерческие условия:Арендная ставка - 12.5 $/м2 с эксплуатации + НДС + коммунальные услуги.Номер оголошення на сайті компанії: RC-182-909-DP.
Створено : 30.10.2025
527 844 грн
12 600 $
Радион Попов
посередник
Створено : 30.10.2025
Переглянуті
Бізнес центр розташований у діловому районі Києва. в пішій доступності до станцій метро Шулявська, Політехнічний інститут, гарна транспортна розвязка. Вакантна площа на восьмому поверсі 1057. Планування змішане...
17.10.2025
Поверх:
7/8
Загальна
1000 м2
209 грн
Аренда стильного офиса в современном Бизнес Центре класса " В + " по адресу улица Гарматная. Этаж 6/6 этажного нежилого здания. Общая площадь офиса 973.65 м2. Фотографии и планировка соответствуют реальности. П...
03.10.2025
Поверх:
6/6
Загальна
1000 м2
816 902 грн
Аренда современного офиса в Бизнес Центре класса " В + " по адресу улица Вадима Гетьмана. Этаж 6-7/12 этажного нежилого здания. Полезная площадь офиса 920.59 м2. Арендуемая площадь 1058.68 м2 ( 15 % коэффициент...
03.10.2025
Поверх:
6/12
Загальна
1000 м2
622 102 грн
Аренда просторного офиса в Бизнес Центре класса " В " по адресу Полевая. Этаж 3/3 этажного нежилого здания. Общая площадь офиса 970 м2. Фотографии и планировка соответствуют реальности. Планировка - open space ...
03.10.2025
Поверх:
3/3
Загальна
1000 м2
488 046 грн
Популярне на сайті

ОдесаОдеса

КиївКиїв























