Здам довгостроково офісне приміщення
Київ, р-н Шевченківський, Ярославов Вал ул., 8Б
ID: 5245566
757 505 грн
К-ть приміщень
25
Поверх
1/5
Тип стін
цегла
Загальна площа
670 м2
Стан
житлове
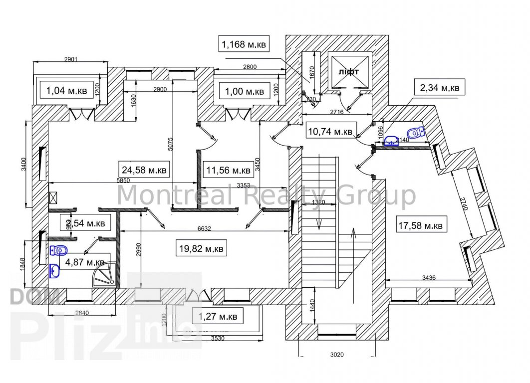
Аренда отдельно стоящего офисного здания в центре Киева по адресу улица Ярославов Вал. 5 этажей + цоколь. Фотографии и планировки соответствуют реальности. Планировки - рабочие зоны + кабинеты/переговорные, кухня, санузлы, кладовки, серверная, балконы. Состояния - хороший офисный ремонт. Здание оснащена всем необходимым для комфортной и безопасной работы, собственный участок, 3 сотки, парковка. Отличная транспортная развязка, в пешей доступности остановка общественного транспорта и станция метро Золотые Ворота 1 минута пешком.Коммерческие условия:Арендная ставка - 18 000 $ с эксплуатации + коммунальные услуги.Номер оголошення на сайті компанії: RC-162-480-DP.
Створено : 08.11.2025
757 505 грн
18 000 $
Радион Попов
посередник
Створено : 08.11.2025
Переглянуті
Аренда современного офиса в центре Киева в Бизнес Центре класса " В " по адресу улица Владимирская. Этаж 2/4 этажного нежилого здания. Общая площадь офиса 680 м2. Фотографии и планировка соответствуют реальност...
03.11.2025
Поверх:
2/4
Загальна
680 м2
488 170 грн
Аренда современного офиса в центре Киева в Бизнес Центре класса " В + " по адресу улица Ростиславская ( Маршала Рыбалко ). Этаж 1/4 этажного нежилого здания. Общая площадь офиса 670 м2. Фотографии и планировка ...
03.11.2025
Поверх:
1/4
Загальна
670 м2
395 586 грн
Аренда просторного офиса в центре Киева в Бизнес Центре класса " В " по адресу улица Дегтяревская. Этаж 5-6/6 этажного нежилого здания. Общая площадь офиса 677 м2. Фотографии и планировка соответсвуют реальност...
03.11.2025
Поверх:
5/6
Загальна
680 м2
256 710 грн
Аренда просторного офиса в Бизнес Центре класса " В " улица Дегтяревская. Этаж 5/10 этажного нежилого здания. Полезная площадь офиса 600 м2. Арендуемая площадь 666 м2 ( 11 % коэффициент BOMA ). Фотографии и пла...
03.11.2025
Поверх:
5/10
Загальна
670 м2
281 960 грн
Популярне на сайті

ОдесаОдеса

КиївКиїв



























