Здам довгостроково офісне приміщення
Київ, р-н Шевченківський, Князя Владимира Мономаха ул., 6
ID: 5246315
631 422 грн
К-ть приміщень
10
Поверх
1/4
Тип стін
цегла
Загальна площа
1100 м2
Стан
житлове
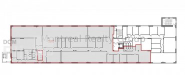
Аренда отдельно стоящего офисного здания в центре Киева по адресу улица Владимира Мономаха ( Отто Шмидта ). 4 этажа. Общая площадь здания 1084 м2. Фотографии и планировка соответствуют реальности. Планировка - open space + рабочие зоны + кабинеты/переговорные, место для кухни, санузлы, кладовки, серверные, балконы на каждом этаже. Состояния - современный ремонт. Установлен новый лифт. Здания оснащена центральной системой кондиционирование и вентиляции, пожарной и охранной сигнализацией, видеонаблюдением, автономное отопления, своя большая парковка, новым ГЕНЕРАТОРОМ. Отличная транспортная развязка, в пешей доступности станция метро Лукьяновская и Тараса Шевченко 15 минут пешком.Коммерческие условия:Арендная ставка - 14 $/м2 + коммунальные услуги.Номер оголошення на сайті компанії: RC-195-165-DP.
Створено : 17.11.2025
631 422 грн
15 000 $
Радион Попов
посередник
Створено : 17.11.2025
Переглянуті
Аренда современного офиса в центре Киева в Бизнес Центре класса " В + " по адресу улица Зоологическая. Этаж 5/13 этажного нежилого здания. Общая площадь офиса 1 155 м2. Фотографии и планировка соответствуют реа...
17.11.2025
Поверх:
5/13
Загальна
1100 м2
921 876 грн
Аренда современного офиса в центре Киева в Бизнес Центре класса " В + " по адресу улица Большая Васильковская. Этаж 8/9 этажного нежилого здания. Общая площадь офиса 1 114 м2. Фотографии и планировка соответств...
17.11.2025
Поверх:
8/9
Загальна
1100 м2
515 661 грн
Аренда просторного офиса в Бизнес центре класса " В + " по адресу улица Николая Пимоненко. Этаж 6/6 этажного нежилого здания. Полезная площадь офиса 985.67 м2. Арендуемая площадь 1 103.95 м2 ( 10 % коэффициент ...
17.11.2025
Поверх:
6/6
Загальна
1100 м2
684 041 грн
Популярне на сайті

ОдесаОдеса

КиївКиїв


























