Здам довгостроково офісне приміщення
Київ, р-н Шевченківський, Дегтяревская ул., 53
ID: 5246495
843 098 грн
К-ть приміщень
16
Поверх
5/15
Тип стін
цегла
Загальна площа
1600 м2
Стан
житлове
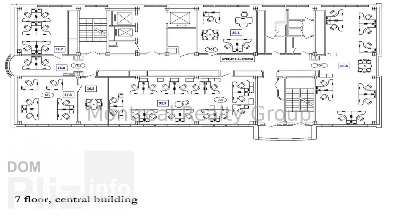
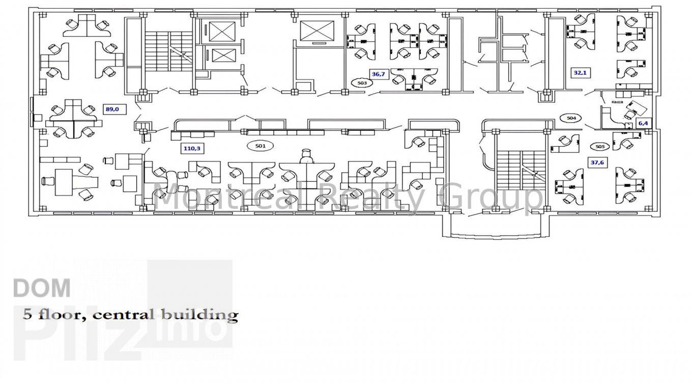
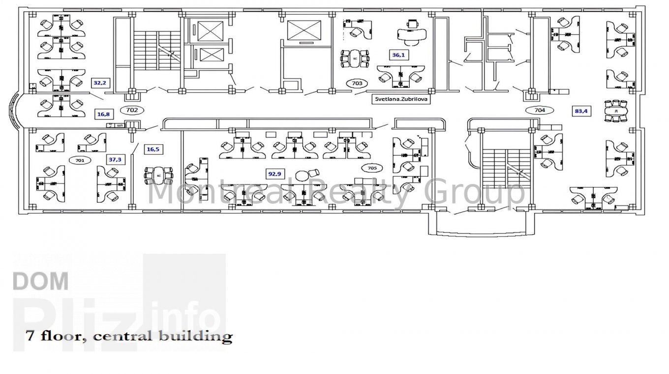
Аренда просторного офиса в центре Киева в Бизнес Центре класса " В " по адресу улица Дегтяревская. Этаж 5-6-7-8/15 этажного нежилого здания. Общая площадь офиса 1 600 м2. Фотографии и планировка соответствуют реальности. Планировка - рабочие зоны + кабинеты/переговорные, место для кухни, санузлы, кладовки, серверная. Состояния - хороший офисный ремонт. Офис оснащен всем необходимым для комфортной и безопасной работы. Отличная транспортная развязка, в пешей доступности остановка общественного транспорта и станция метро Берестейская 5 минут пешком.Вакантность в этом БЦ - 300 м2, 400 м2, 800 м2, 1 600 м2, 2000 м2, 2 400 м2, 2 800, 3 200 м2, 1 200 м2, 600 м2.Оснащения Бизнес Центра:1. Система кондиционирования.2. Система приточно-вытяжной вентиляции.3. Оптоволоконные линии связи.4. Система контроля доступа.5. Противопожарная система безопасности.6. Круглосуточная физическая охрана.7. Видеонаблюдение.8. Лифты - 2 шт., фирмы OTIS.9. Большая наземная парковка.10. Генератор.Коммерческие условия:Арендная ставка - 12.5 $/м2 с эксплуатации + НДС + коммунальные услуги.Номер оголошення на сайті компанії: RC-204-697-DP.
Створено : 17.11.2025
843 098 грн
20 000 $
Радион Попов
посередник
Створено : 17.11.2025
Переглянуті
Аренда просторного офиса в Бизнес Центре класса " В + " улица Дегтяревская. Этаж 8/10 этажного нежилого здания. Полезная площадь офиса 700 м2. Арендуемая площадь 777 м2 ( 11 % коэффициент BOMA ). Фотографии и п...
21.11.2025
Поверх:
8/10
Загальна
780 м2
311 946 грн
Аренда просторного офиса в центре Киева в Бизнес Центре класса " В + " по адресу улица Сечевых Стрельцов ( Артема ). Этаж 5/10 этажного нежилого здания. Общая площадь офиса 187 м2. Фотографии и планировка соотв...
18.11.2025
Поверх:
5/10
Загальна
190 м2
143 327 грн
Аренда отдельно стоящего офисного здания в центре Киева по адресу улица Ярославов Вал. 5 этажей + цоколь. Фотографии и планировки соответствуют реальности. Планировки - рабочие зоны + кабинеты/переговорные, кух...
17.11.2025
Поверх:
1/5
Загальна
670 м2
758 788 грн
Аренда стильного офиса в центре Киева по адресу улица Ивана Франка. Этаж 5/7 этажного здания. Общая площадь офиса 250 м2. Фотографии и планировка соответствуют реальности. Планировка - open space + рабочие зоны...
17.11.2025
Поверх:
5/7
Загальна
250 м2
295 084 грн
Популярне на сайті

ОдесаОдеса

КиївКиїв


















