Здам довгостроково офісне приміщення
Київ, р-н Шевченківський, Дегтяревская ул., 53
ID: 5246498
319 920 грн
К-ть приміщень
13
Поверх
13/15
Тип стін
цегла
Загальна площа
600 м2
Стан
житлове
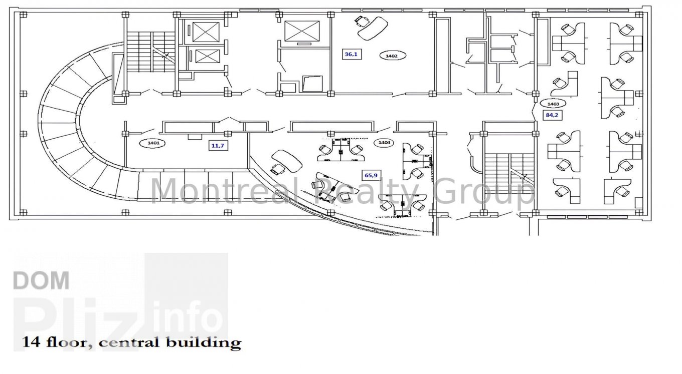
Аренда просторного офиса в центре Киева в Бизнес Центре класса " В " по адресу улица Дегтяревская. Этаж 13-14/15 этажного нежилого здания. Общая площадь офиса 600 м2. Фотографии и планировка соответствуют реальности. Планировка - рабочие зоны + кабинеты/переговорные, место для кухни, санузлы, кладовки, серверная. Состояния - хороший офисный ремонт. Офис оснащен всем необходимым для комфортной и безопасной работы. Отличная транспортная развязка, в пешей доступности остановка общественного транспорта и станция метро Берестейская 5 минут пешком.Вакантность в этом БЦ - 300 м2, 400 м2, 800 м2, 1 600 м2, 2000 м2, 2 400 м2, 2 800, 3 200 м2, 1 200 м2, 600 м2.Оснащения Бизнес Центра:1. Система кондиционирования.2. Система приточно-вытяжной вентиляции.3. Оптоволоконные линии связи.4. Система контроля доступа.5. Противопожарная система безопасности.6. Круглосуточная физическая охрана.7. Видеонаблюдение.8. Лифты - 2 шт., фирмы OTIS.9. Большая наземная парковка.10. Генератор.Коммерческие условия:Арендная ставка - 12.5 $/м2 с эксплуатации + НДС + коммунальные услуги.Номер оголошення на сайті компанії: RC-204-700-DP.
Створено : 17.11.2025
319 920 грн
7 600 $
Радион Попов
посередник
Створено : 17.11.2025
Переглянуті
Аренда современного офиса в центре Киева в Бизнес Центре класса " В + " по адресу улица Зоологическая. Этаж 8/13 этажного нежилого здания. Общая площадь офиса 600 м2. Фотографии и планировка соответствуют реаль...
17.11.2025
Поверх:
8/13
Загальна
600 м2
479 881 грн
Аренда просторного офиса в центре Киева в Бизнес Центре класса " В " по адресу Варяжский переулок ( Бехтеревский переулок ). Этаж 3/6 этажного нежилого здания. Общая площадь офиса 607 м2. Фотографии и планировк...
17.11.2025
Поверх:
3/6
Загальна
600 м2
294 664 грн
БЕЗ КОМИССИИ!!! Аренда офиса 600 м2, бул. Тараса Шевченко (Центр, Шевченковский район). Офис расположен на 2 этаже бизнес центра (нежилой фонд) и имеет смешанную планировку, кухня, с/у. Офис с ремонтом и оборуд...
11.02.2022
Поверх:
2/7
Загальна
600 м2
479 881 грн
БЕЗ КОМИССИИ! Аренда офиса 600 м2 в Бизнес центре класса "В+" в центре Киева. Помещение на 10-м этаже, планировка: 2 зоны Open space, 3 переговорные комнаты, 4 кабинета, гардеробная, кухня-столовая, серверная, ...
11.02.2022
Поверх:
10/17
Загальна
600 м2
762 758 грн
Популярне на сайті

ОдесаОдеса

КиївКиїв
















