Здам довгостроково офісне приміщення
Київ, р-н Шевченківський, Рыльский пер., 6
ID: 5246660
399 901 грн
К-ть приміщень
16
Поверх
3/7
Тип стін
цегла
Загальна площа
430 м2
Стан
житлове
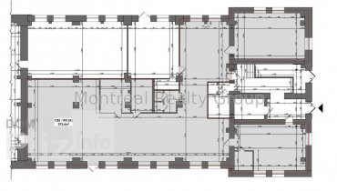
Аренда современного офиса в центре Киева в престижном Бизнес Центре класса " А " по адресу Рыльский переулок. Этаж 3/7 этажного нежилого здания. Общая площадь офиса 428 м2. Фотографии и планировка соответствуют реальности. Планировка - рабочие зоны + кабинеты/переговорные, кухня, санузлы, кладовки, серверная. Состояния - современный ремонт. Офис оснащен всем необходимым для комфортной и безопасной работы. Отличная транспортная развязка, в пешей доступности остановка общественного транспорта и станции метро Золотые Ворота и Майдан Независимости 10 минут пешком.Оснащения Бизнес Центра:1. Система кондиционирования.2. Система приточно-вытяжной вентиляции.3. Автономное отопление.4. Система контроля доступа.5. Противопожарная система безопасности.6. Круглосуточная физическая охрана.7. Видеонаблюдение.8. Лифты - 2 шт., фирмы OTIS.9. Подземный паркинг и наземная парковка.10. Генератор.Коммерческие условия:Арендная ставка - 22 $/м2 с эксплуатации + НДС + коммунальные услуги.Номер оголошення на сайті компанії: RC-210-910-DP.
Створено : 17.11.2025
399 901 грн
9 500 $
Радион Попов
посередник
Створено : 17.11.2025
Переглянуті
Аренда современного офиса в центре Киева в Бизнес Центре класса " А + " по адресу улица Михайловская. Этаж 2/5 этажного нежилого здания. Общая площадь офиса 424.68 м2. Фотографии и планировка соответствуют реал...
17.11.2025
Поверх:
2/5
Загальна
430 м2
610 375 грн
Аренда просторного офиса в центре Киева в Бизнес Центре класса " В + " по адресу улица Дегтяревская. Этаж 4/9 этажного нежилого здания. Полезная площадь офиса 401.8 м2. Арендуемая площадь 441.98 м2 ( 10 % коэфф...
17.11.2025
Поверх:
4/9
Загальна
440 м2
242 045 грн
Аренда просторного офиса в центре Киева в Бизнес Центре класса " В + " по адресу улица Дегтяревская. Этаж 5/9 этажного нежилого здания. Полезная площадь офиса 403 м2. Арендуемая площадь 443.3 м2 ( 10 % коэффици...
17.11.2025
Поверх:
5/9
Загальна
440 м2
244 150 грн
Аренда просторного офиса в Бизнес Центре класса " В " по адресу улица Елены Телиги. Этаж 1/5 этажного нежилого здания. Полезная площадь офиса 373.6 м2. Арендуемая площадь 422.17 м2 ( 13 % коэффициент BOMA ). Фо...
17.11.2025
Поверх:
1/5
Загальна
430 м2
319 920 грн
Популярне на сайті

ОдесаОдеса

КиївКиїв



















