Здам довгостроково офісне приміщення
Київ, р-н Печерський, Василия Тютюнника ул., 28Б
ID: 5246789
1 877 428 грн
К-ть приміщень
25
Поверх
1/5
Тип стін
цегла
Загальна площа
1900 м2
Стан
житлове
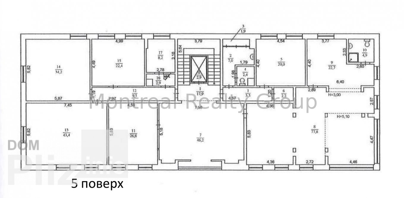
Аренда офисного здания в центре Киева по адресу улица Василия Тютюнника ( Анри Барбюса ). 5 этажей. Общая площадь здания 1 857 м2. Фотографии и планировка соответствуют реальности. Планировка - рабочие зоны + кабинеты/переговорные, кухни, санузлы, серверная. Состояние - хороший офисный ремонт. Здание оснащена системой кондиционирования и вентиляция, автономное отопление, лифтом, пожарной и охранной сигнализации, системой СКД. Территория здания ограждена, на территории пост охраны, шлагбаум, видеонаблюдение. Количество машиномест для парковки - 25 места. Отличная транспортная развязка, в пешей доступности остановка общественного транспорта и станция метро Палац Украина 10 минут пешком.Коммерческие условия:Арендная ставка - 24 $/м2 с экспуатации + НДС + коммунальные услуги.Номер оголошення на сайті компанії: RC-167-405-DP.
Створено : 17.11.2025
1 877 428 грн
44 600 $
Радион Попов
посередник
Створено : 17.11.2025
Переглянуті
Аренда просторного офиса в центре Киева по адресу улица Евгения Коновальца ( Щорса ). Этаж 1/24 этажного здания. Отдельный вход. Общая площадь офиса 180 м2. Фотографии и планировка соответствуют реальности. Пла...
17.11.2025
Поверх:
1/24
Загальна
180 м2
105 237 грн
Аренда современного офиса в центре Киева в Бизнес Центре класса " В " по адресу улица Николая Лескова. Этаж 7/9 этажного нежилого здания. Общая площадь офиса 635 м2. Фотографии соответствуют реальности. Планиро...
17.11.2025
Поверх:
7/9
Загальна
640 м2
454 624 грн
Аренда современного офиса в центре Киева в Бизнес Центре класса " В + " по адресу улица Старонаводницкая. Этаж 2-3/6 этажного нежилого здания. Общая площадь офиса 667 м2. Фотографии и планировка соответствуют р...
17.11.2025
Поверх:
2/6
Загальна
670 м2
561 966 грн
Аренда современного офиса в центре Киева в Бизнес Центре класса " В + " по адресу улица Старонаводницкая. Этаж 3/6 этажного нежилого здания. Общая площадь офиса 347 м2. Фотографии и планировка соответствуют реа...
17.11.2025
Поверх:
3/6
Загальна
350 м2
294 664 грн
Популярне на сайті

ОдесаОдеса

КиївКиїв





















