Здам довгостроково офісне приміщення
Київ, р-н Шевченківський, Независимости Площадь пл.
ID: 5246805
1 160 741 грн
К-ть приміщень
5
Поверх
9/9
Тип стін
цегла
Загальна площа
700 м2
Стан
житлове
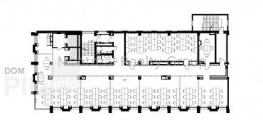
Аренда современного офиса в центре Киева в Бизнес Центре класса " А " по адресу площадь Независимости. Этаж 9/9 этажного нежилого здания. Общая площадь этажа 700 м2. Фотографии и планировка соответствуют реальности. Планировка - open space + кабинеты/переговорные, кухня, санузлы, кладовки, серверная, есть выход на маленькую террасу. Состояния - современный ремонт и мебель. Офис оснащен всем необходимым для комфортной и безопасной работы. Отличная транспортная развязка, в пешей доступности станция метро Майдан Независимости 1 минута пешком.Вакантность в этом БЦ - 700 м2.Оснащения Бизнес Центра:1. Автоматизированная система управления зданием (АСКУ).2. Система приточно-вытяжной вентиляции.3. Система кондиционирования.4. Автономное отопление.5. Оптоволоконные линии связи.6. Система контроля доступа.7. Противопожарная система безопасности.8. Круглосуточная физическая охрана.9. Круглосуточное видеонаблюдение.10. Лифты - 4 шт., фирмы KONE.11. Подземный паркинг и наземная парковка.12. Генератор.Коммерческие условия:Арендная ставка - 27 300 $ в месяц с эксплуатации, НДС и коммунальные услуги.Номер оголошення на сайті компанії: RC-215-845-DP.
Оновлене: 03.01.2026
1 160 741 грн
27 000 $
Радион Попов
посередник
Оновлене: 03.01.2026
Переглянуті
Аренда современного офиса в центре Киева в Бизнес Центре класса " А " по адресу площадь Независимости. Этаж 8/9 этажного нежилого здания. Общая площадь этажа 700 м2. Фотографии и планировка соответствуют реальн...
03.01.2026
Поверх:
8/9
Загальна
700 м2
1 203 731 грн
Аренда современного офиса в центре Киева в Бизнес Центре класса " В " по адресу улица Большая Жиомирская. Этаж 7/12 этажного нежилого здания. Общая площадь офиса 682 м2. Фотографии и планировка соответствуют ре...
03.01.2026
Поверх:
7/12
Загальна
700 м2
528 782 грн
Аренда просторного офиса в Бизнес Центре класса " В " по адресу улица Олешковская ( Орловская ). Этаж 5-6/6 этажного нежтлого здания. Общая площадь офиса 720 м2. Фотографии и планировка соответствуют реальности...
03.01.2026
Поверх:
5/6
Загальна
700 м2
288 000 грн
Аренда просторного офиса в Бизнес Центре класса " В " улица Дегтяревская. Этаж 9/10 этажного нежилого здания. Полезная площадь офиса 618.7 м2. Арендуемая площадь 686.75 м2 ( 11 % коэффициент BOMA ). Фотографии ...
03.01.2026
Поверх:
9/10
Загальна
690 м2
281 587 грн
Популярне на сайті

ОдесаОдеса

КиївКиїв






















