Продається будинок
Овідіопольський район, Великодолинське, 13 линия
ID: 5247036
4 004 716 грн
(28 605 за м2)
Поверховість
1/2
Тип стін
цегла
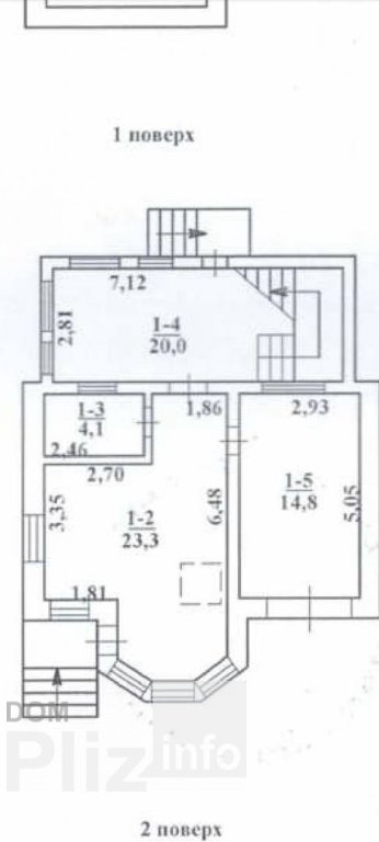
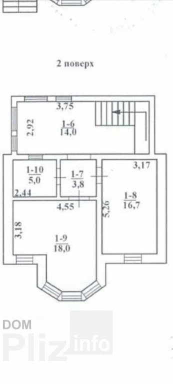
Загальна площа
140 м2
Житлова площа
35 м2
Площа кухні
23 м2
Стан
житлове
Тип нерухомості
Будинок
Продам дом в Великодолинском. 2х этажный, красный кирпич/натуральная черепица. Общая площадь 140 м2, жилая 35 м2, кухня-студия 23 м2. Ремонт, мебель и техника. Красивая архитектура. Дорогие и качественные материалы. Стены: газобетон утеплитель красный современный кирпич. В доме есть все коммуникации: свет, вода, газ, выгребная яма. Отопление индивидуальное газовое – 2 контурный котел, электрический котел и современный камин-буржуйка, как альтернатива. Есть кондиционеры. Красивая мраморная лестница ведет на 2й этаж. Подключен Интернет, Wi-fi. На 1 этаже (теплый пол) – прихожая, санузел, кухня-столовая, выход в гараж и в подвал. На 2 этаже – холл, 2 спальни, санузел и выход на чердак. Подвал – помещение, которое можно использовать в качестве бомбоубежища, а также для хранения продуктов и консервации.Участок 6 соток, есть крытый бассейн с подогревом, баня-сауна, уличный туалет, душ, беседка, навес для авто. А также много роз, туи, фруктовые деревья и место для овощей. Красивый современный забор. Полный пакет документов. Удобное транспортное сообщение. Идеальный вариант для уютной и успешной жизни. Звоните. Смотрите. Покупайте. Посредникам, просьба не беспокоить. ID объекта: 213633
Оновлене: 21.11.2025
4 004 716 грн
(28 605 за м2)
95 000 $
(679 за м2)
АН Премьер Королева, 33
посередник
Оновлене: 21.11.2025
Переглянуті
23516 В продаже дом в ВеликодолинскомОбщая площадь 148 кв.м. Два этажа. Капитальный ремонт. Индивидуальное газовое отопление. 1 этаж: кухня, гостиная, спальня, санузел. 2 этаж: две спальни. Все комнаты раздельн...
21.11.2025
Поверховість:
1
Загальна
148 м2
Житлова
70 м2
Кухня
15 м2
Ділянка
6
1 896 971 грн
Продается дом под Черноморском. Общая площадь 147 кв.м., участок 15 соток.Дом с ремонтом, меблирован и оборудован всей необходимой техникой. Можно сразу заселяться и жить без дополнительных вложений. Все коммун...
21.11.2025
Поверховість:
1
Загальна
147 м2
3 372 392 грн
Предлагается к продаже капитальный дом в Великодолинском. Дом в жилом состоянии использовался как дача, но есть возможность его использовать и зимой. 1й этаж: тамбур, прихожая, санузел, 2 комнаты и кухня. 2й эт...
21.11.2025
Поверховість:
1
Загальна
132 м2
Житлова
23 м2
Кухня
10 м2
1 475 422 грн
Предлагается к продаже уютный и стильный трех этажный танхаус в пгт. Великодолинское. Это хороший вариант для комфортной семейной жизни или для данчного отдыха. Пять раздельных комнат. На 1 этаже: кухня - студи...
21.11.2025
Поверховість:
1
Загальна
150 м2
Житлова
80.72 м2
Кухня
19.9 м2
3 583 167 грн
Популярне на сайті

ОдесаОдеса

КиївКиїв





































