Продається 4-кімнатна квартира
Одеса, р-н Приморський, Армейская
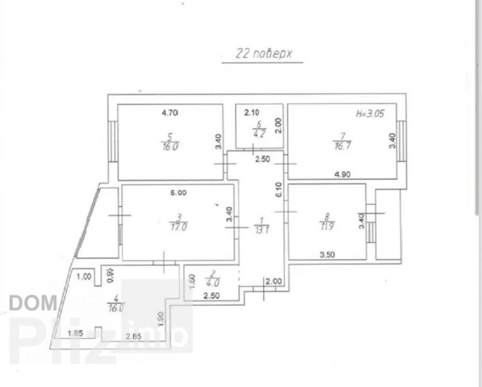
ID: 5248081
5 185 053 грн
(49 381 за м2)
Кіл-ть кімнат
4
Поверх
22/22
Тип стін
цегла
Загальна площа
105 м2
Житлова площа
80 м2
Площа кухні
15 м2
Стан
житлове
Тип нерухомості
Вторинний ринок
№6846. . Продается просторная квартира в новом жилом комплексе на ул. Армейская.Красивый вид на город со всех окон. Состояние от строителей, что поможет вам воплотить любые идеи в жизнь. Большая лоджия и балкон.Облагороженная придомовая территория с зонами для отдыха. Паркинг. Великолепное расположение. Рядом парк Победы, море. До центра 15 минут езды.
Створено : 21.11.2025
5 185 053 грн
(49 381 за м2)
123 000 $
(1 171 за м2)
Анна
посередник
Створено : 21.11.2025
Переглянуті
29797. Продам 4-х комнатную квартиру с видом на море в жилом комплексе Модерн. Встречать рассветы и провожать закаты - и все это из окон своей квартиры. Общая площадь 105 кв.м. Готова под ваш индивидуальный диз...
21.11.2025
Кімнат
4
Поверх:
24/24
Загальна
105 м2
Житлова
60 м2
Кухня
12 м2
4 426 265 грн
28750. Продаю квартиру 100 кв.м на 23 этаже в ЖК Модерн (бизнес-класс), ул. Ивана Франко, 40. Дом сдан в 2023 году, в наличие документы собственности. Состояние от строителей. Продажа от собственника.Видовая кв...
21.11.2025
Кімнат
4
Поверх:
23/24
Загальна
100 м2
Житлова
80 м2
Кухня
16 м2
4 889 968 грн
28736.Продам 4-х комнатную квартиру рядом с Гор Садом в пер. Маяковского.Общая площадь 115 кв.м. Все коммуникации заведены. Состояние позволит новым собственникам сделать ремонт по индивидуальному проекту.Отли...
21.11.2025
Кімнат
4
Поверх:
1/4
Загальна
115 м2
Житлова
80 м2
Кухня
10 м2
3 157 402 грн
26770 Продам 4-х комнатную квартиру в Центре.Средний этаж. Общая площадь 110 кв.м. Жилое состояние. Правильная планировка. Высокие потолки.Закрытая чистая парадная с мраморной лестницей. В пешей доступности дос...
21.11.2025
Кімнат
4
Поверх:
2/3
Загальна
110 м2
Житлова
74 м2
Кухня
12 м2
8 852 529 грн
Популярне на сайті

ОдесаОдеса

КиївКиїв















