Здам довгостроково офісне приміщення
Одеса, р-н Приморський, Ясная
ID: 5249121
103 497 грн
Поверх
1/цокольний
Тип стін
цегла
Загальна площа
312 м2
Стан
житлове
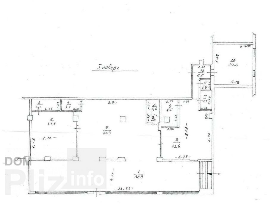
18331. Фасадное помещение на ул. Ясная. Офис с новым ремонтом. Общая площадь 312 кв.м. Два санузла, фасадный вход. Два запасных выхода.Кондиционеры. Крышная котельная, теплосчётчики.
Оновлене: 19.12.2025
103 497 грн
2 400 $
Анна
посередник
Оновлене: 19.12.2025
Переглянуті
31106. Сдам офис в центре города на Вице- Адмирала Жукова. Офис находится в бизнес центре на 2 этаже. Общая площадь 171,15 кв.м. Планировка: open space + кабинет со стеклянными перегородками. Офис укомплектов...
09.01.2026
Поверх:
1
Загальна
171 м2
110 828 грн
Здається дворовий офіс Пушкінська. Філармонія. Загальна площа 100 м2, 2 поверх, 4 кабінети, 2 прохідні, 2 окремі (один з них без вікна), кухня, санвузол, газовий котел. Пристойний стан. Без меблів. Закритий дві...
27.12.2025
Поверх:
2/2
Загальна
100 м2
Житлова
67 м2
12 000 грн
30910. Сдам без комиссии (0%) офис в центре города. Бизнес центр от Кадорр на Екатерининской. Офис общей площадью 86,4 кв.м. с балконом и панорамным остеклением. Вид на город и море. Распланирован на два кабине...
19.12.2025
Поверх:
1
Загальна
86 м2
44 849 грн
30890. Сдам офис площадью 650 кв.м. на ул. Базарная. Кабинетная система. Распланирован на 12 Кабинетов, 4 сан здула, кухню. Установлены кондиционеры. Хорошее состояние.Внизу консьерж. По фасаду удобная парковка...
19.12.2025
Поверх:
1
Загальна
650 м2
280 303 грн
Популярне на сайті

ОдесаОдеса

КиївКиїв


























