Продається 1-кімнатна квартира
Одеса, р-н Приморський, Софиевская
ID: 5250560
2 044 742 грн
(47 552 за м2)
Кіл-ть кімнат
1
Поверх
5/9
Тип стін
цегла
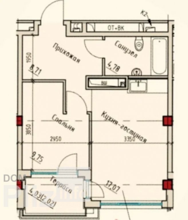
Загальна площа
43 м2
Житлова площа
10 м2
Площа кухні
17 м2
Стан
житлове
Тип нерухомості
Вторинний ринок
29623 Продам однокомнатную квартиру в Центре города на Софиевской. Располагается на среднем этаже с видом на парк. Общая площадь 43 кв.м. Застекленная лоджия. Просторная кухня-студия.Состояние позволит новым собственникам сделать ремонт по индивидуальному проекту.Облагороженная придомовая территория. Шаговая доступность к Приморскому бульвару, Оперному театру и главным достопримечательностям города.Отличный вариант как для личного проживания, так и под арендный бизнес.
Створено : 21.11.2025
2 044 742 грн
(47 552 за м2)
48 300 $
(1 123 за м2)
Анна
посередник
Створено : 21.11.2025
Переглянуті
22976 Предлагаю к продаже 1-комнатную квартиру в новом сданном комплексе в Аркадии. Располагается на среднем этаже. Удобная планировка. Застекленная лоджия - панорамные окна. В квартире выполнен качественный ре...
03.12.2025
Кімнат
1
Поверх:
4/25
Загальна
37 м2
Житлова
16 м2
Кухня
10 м2
2 455 384 грн
Квартира в новом,малоквартирном доме, возле моря. Качественный авторский ремонт .Гардеробная. Балкон с видом на море. Укомплектована мебелью и бытовой техникой. Собственная котельная. Закрытая территория. 10 ми...
03.12.2025
Кімнат
1
Поверх:
6/8
Загальна
38 м2
Житлова
18 м2
Кухня
9 м2
2 408 816 грн
Продам 1к квартиру в 2х этажном малоквартирном доме на Заставе. Общая площадь 47 кв м. Дом построен из красного энергоэффективного кирпича, толщина стен 60 см. Стены утеплены фасадной минеральной ватой и отдела...
03.12.2025
Кімнат
1
Поверх:
1/2
Загальна
47 м2
Житлова
25 м2
Кухня
15 м2
1 143 023 грн
Предлагается в продажу однокомнатная квартира под ремонт в районе 5я ст.Б.Фонтана, Судостроитель, Адмиральский проспект, Одесса.Общая площадь — 37 кв.м, кухня 7,7кв.м, просторная комната 18кв.м, два балкона рас...
03.12.2025
Кімнат
1
Поверх:
5/5
Загальна
36.9 м2
Житлова
18.3 м2
Кухня
7.7 м2
889 018 грн
Популярне на сайті

ОдесаОдеса

КиївКиїв













