Продається 4-кімнатна квартира
Одеса, р-н Київський, Вильямса Академика ул., 87
ID: 5252790
2 627 021 грн
(26 114 за м2)
Кіл-ть кімнат
4
Поверх
8/12
Тип стін
цегла
Загальна площа
100.6 м2
Житлова площа
55.3 м2
Площа кухні
7 м2
Стан
житлове
Тип нерухомості
Вторинний ринок
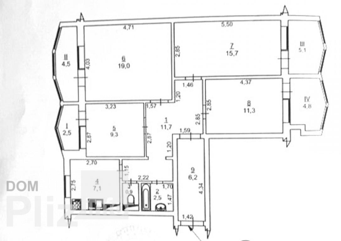
Продажа 4 комнатной квартиры на Таирова, раздельные хода, гостиная 19 кв.м. + 3 спальни: 15,7 + 11,3 + 9,3. Лоджия из каждой комнаты. В комнатах наборной паркет, столярка дерево / лак. Рядом детский сад, школа № 86, супермаркет.
Створено : 25.11.2025
2 627 021 грн
(26 114 за м2)
62 000 $
(616 за м2)
БЕСТТ НЕДВИЖИМОСТЬ
посередник
Створено : 25.11.2025
Переглянуті
26618 Продам 4-х комнатную квартиру в сотовом проекте на пр. Небесной Сотни. Средний этаж с шикарным видом из окон на город. Общая площадь 92 кв.м. Произведена и узаконена частичная перепланировка. Раздельные к...
21.11.2025
Кімнат
4
Поверх:
14/16
Загальна
92 м2
Житлова
50 м2
Кухня
20 м2
2 330 422 грн
25941 Продам 4-х комнатную квартиру в сотовом проекте на ул. Ак. Вильямса.Располагается на среднем этаже. Просторная раздельная планировка. Лоджии раскрыты и утеплены. Жилое состояние. Установлена кухонная мебе...
21.11.2025
Кімнат
4
Поверх:
8/16
Загальна
96 м2
Житлова
65 м2
Кухня
8 м2
2 669 392 грн
25839. Продам 4-х комнатную квартиру на Фонтане в новом ЖК Пространство на Дачной.Располагается на среднем этаже. Общая площадь 98 кв.м. Состояние позволит новым собственникам сделать ремонт по индивидуальному ...
21.11.2025
Кімнат
4
Поверх:
5/6
Загальна
98 м2
Житлова
39 м2
Кухня
38 м2
5 211 670 грн
№684.. Продам 4-комнатную в р-не Вузовского. Общая площадь 97 кв.м. Раздельные комнаты. В квартире выполнен качественный ремонт. 3 балкона. Установлен бойлер. Крепкий дом. Прекрасное месторасположение. Хорошо р...
21.11.2025
Кімнат
4
Поверх:
10/10
Загальна
97 м2
Житлова
62 м2
Кухня
14 м2
3 813 417 грн
Популярне на сайті

ОдесаОдеса

КиївКиїв











