Продається 1-кімнатна квартира
Одеса, р-н Київський, Вильямса Академика ул., 93
ID: 5252859
1 694 852 грн
(39 879 за м2)
Кіл-ть кімнат
1
Поверх
9/24
Тип стін
цегла
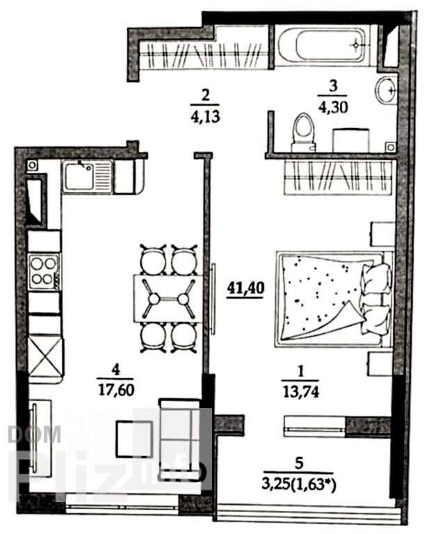
Загальна площа
42.5 м2
Житлова площа
17.4 м2
Площа кухні
18 м2
Стан
житлове
Тип нерухомості
Вторинний ринок
Продаж 1 кімнатної квартири в новому будинку на Таїрова. Академіка Вільямса/Ніссан центр. ЖК Таїровські сади. Новий житловий комплекс. 42,5 кв. кухня студія 18 кв.м, кімната 14 кв.м з виходом на лоджію,. Незавершений ремонт під чистове оздоблення. Повністю проведено електрику, встановлено німецькі щитки, проведено магістраль під кондиціонер, розведено труби, ванну кімнату (плитку під білий мармур, дорогу інсталяцію, велику ванну), стіни готові під шпалери, встановлені німецькі підвіконня, в коридорі плитка. Підземний паркінг (використовується як бомбосховище). Контроль доступу, відеонагляд, закритий двір без авто. Продажа 1 комнатной квартиры в новом доме на Таирова. Академика Вильямса / Ниссан центр. ЖК Таировские сады. Новый жилой комплекс. 42,5 кв.м. кухня студия 18 кв.м. комната 14 кв.м. с выходом на лоджию, Незавершенный ремонт под чистовую отделку. Полностью проведена электрика, установлены немецкие щитки, проведена магистраль под кондиционер, разведены трубы, ванная комната (плитка под белый мрамор, дорогая инсталляция, большая ванная), стены готовы под обои, установлены немецкие подоконники, в коридоре плитка. Подземный паркинг(используется как бомбоубежище). Контроль доступа, видеонаблюдение, закрытый двор без авто.
Створено : 25.11.2025
1 694 852 грн
(39 879 за м2)
40 000 $
(941 за м2)
БЕСТТ НЕДВИЖИМОСТЬ
посередник
Створено : 25.11.2025
Переглянуті
Простора квартира,з косметичним ремонтом. вбудована кухня, прибудований балкон (можна використовувати як окрему кімнату). Дуже спокійний район, від дороги далеко не чутно шуму. У радіусі 250 метрів - школа, дит...
25.11.2025
Кімнат
1
Поверх:
4/9
Загальна
34 м2
Житлова
18 м2
Кухня
9 м2
1 482 996 грн
Продаж 1 кімнатної квартири на Таїрова / Академіка Корольова. Чешка, Газ. Кооперативний будинок другий від дороги. Капітальний ремонт. Вбудована кухня, техніка, кондиціонер. Підлога ламінат / плитка, труби та п...
25.11.2025
Кімнат
1
Поверх:
8/9
Загальна
38 м2
Житлова
18 м2
Кухня
9 м2
1 482 996 грн
Костанди / Люстдорфська дор. Продаж 1к квартири в ЖК Горизонт. 4 поверх. Загальна площа 44,8 м2; кухня студія 18,6 м2,. Капремонт, вбудована кухня, техніка: посудомийна машина, витяжка, варильна поверхня, духов...
25.11.2025
Кімнат
1
Поверх:
8/24
Загальна
44.8 м2
Житлова
13.4 м2
Кухня
18.6 м2
2 754 135 грн
Продаж 1 кімнатної квартири на початку Таїрова / 3 станція Люстдорфської дороги. Капремонт, ЖК «Альтаїр». Загальна площа 47 квадратних метри знаходиться на 1-му поверсі. Кухня 12.2 кв.м. із виходом на простору ...
25.11.2025
Кімнат
1
Поверх:
1/25
Загальна
47 м2
Житлова
17.3 м2
Кухня
12.2 м2
2 351 607 грн
Популярне на сайті

ОдесаОдеса

КиївКиїв













