Продається 2-кімнатна квартира
Одеса, р-н Київський, Ильфа и Петрова, 57/4
ID: 5252884
1 461 810 грн
(31 102 за м2)
Кіл-ть кімнат
2
Поверх
3/9
Тип стін
цегла
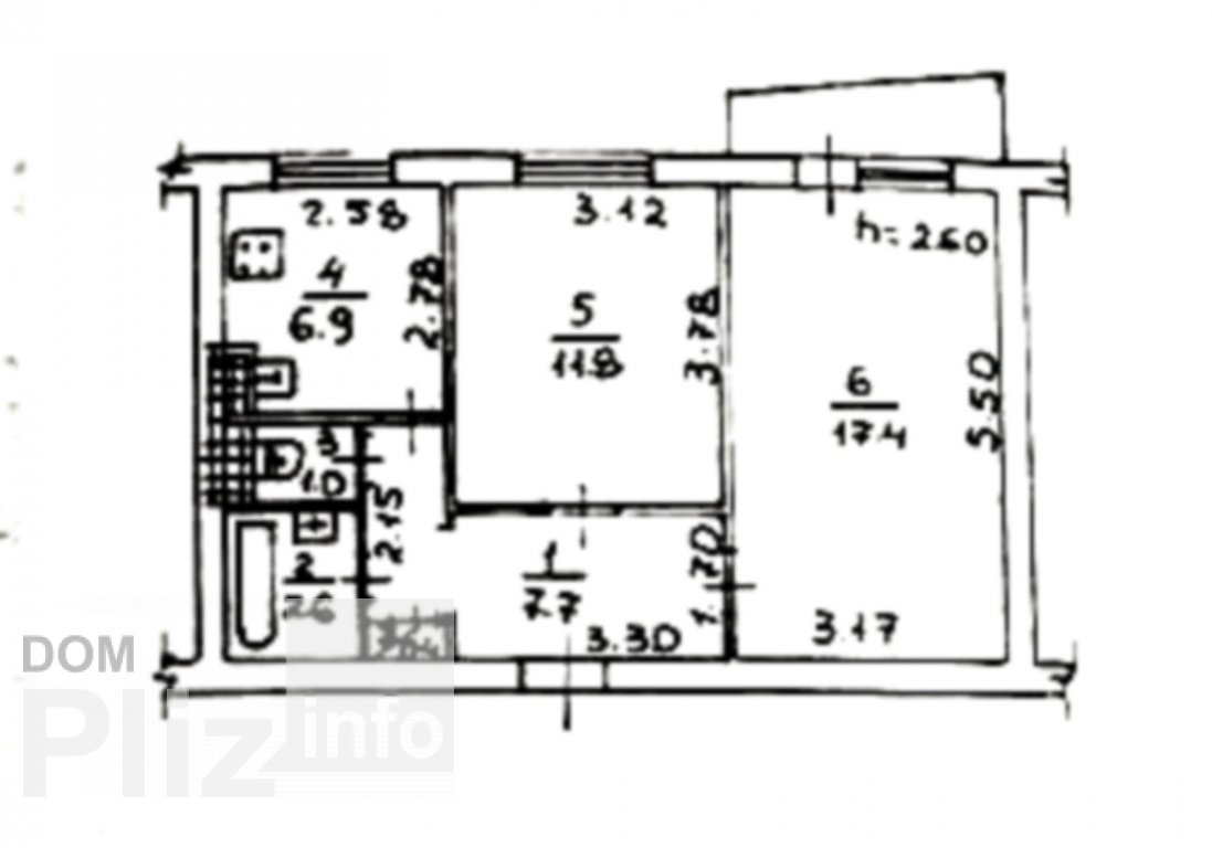
Загальна площа
47 м2
Житлова площа
28 м2
Площа кухні
7 м2
Стан
житлове
Тип нерухомості
Вторинний ринок
Продам 2-х кімнатну чешку на Таїрова. Ільфа та Петрова, другий будинок від дроги, 3 поверх, ГАЗ, кімнати роздільні. Броньовані двері. Проведення нове, стіни ошпатльовані, м еталопластикові вікна. Чиста парадна. Відмінне розташування будинку, поруч школа, дитячий садок, тенісні корти, футбольна школа Чорноморець, супермаркет. 15 хвилин пішки Дубовий гай, 20 хвилин до моря. Хороша транспортна розвязка Продам 2-х комнатную чешку на Таирова. Ильфа и Петрова, второй дом от дроги, 3 этаж, ГАЗ, комнаты раздельные. Бронированная дверь. Проводка новая, стены ошпатлеваны,металлопластиковые окна.НОвая бронированная дверь. Чистая парадная. Отличное расположение дома, рядом школа, детский сад, теннисные корты, футбольная школа Черноморец, супермаркет. 15 минут пешком Дубовая роща, 20 минут к морю. Хорошая транспортная развязка
Створено : 25.11.2025
1 461 810 грн
(31 102 за м2)
34 500 $
(734 за м2)
БЕСТТ НЕДВИЖИМОСТЬ
посередник
Створено : 25.11.2025
Переглянуті
Продам 2к квартиру на Таїрова. Чикаленко (Академіка Вільямса). Розпочато ремонт, замінено електропроводку та каналізацію. Кухня після ремонту, нові меблі, техніка. Роздільний санвузол, гардеробна / комора + ком...
25.11.2025
Кімнат
2
Поверх:
12/14
Загальна
51 м2
Житлова
30 м2
Кухня
8.2 м2
1 610 109 грн
Продаж 2 кімнатної квартири на початку Таїрова. Академіка Корольова. ГАЗ! Спецпроект, 2-й ряд від дороги, теплий, кооперативний будинок. Чудовий житловий стан, вбудована кухня, техніка. Загальна площа 53 кв.м.,...
25.11.2025
Кімнат
2
Поверх:
3/10
Загальна
53 м2
Житлова
29.6 м2
Кухня
8.7 м2
2 118 565 грн
Продаж 2-кімн квартири в Перловому кварталі на Архітекторській. 44,5 м2. Дві спальні, кухня-студія 18 м2. Виконано якісний ремонт, вбудована кухня, техніка, вбудована шафа, мякі меблі. Просторі облагороджені пр...
25.11.2025
Кімнат
2
Поверх:
7/19
Загальна
44.5 м2
Житлова
20 м2
Кухня
18 м2
2 775 320 грн
Продаж 2 кімнатної квартири, центр Таїрова. Академіка Корольова / Костанді. Капремонт, цегляний будинок. Вбудована кухня, техніка, металопластикові вікна, балкон та лоджія. С/в роздільний фанерований, своя комо...
25.11.2025
Кімнат
2
Поверх:
8/9
Загальна
52 м2
Житлова
30 м2
Кухня
8 м2
2 330 422 грн
Популярне на сайті

ОдесаОдеса

КиївКиїв












