Продається офісне приміщення
Одеса, р-н Київський, Костанди ул.
ID: 5252959
2 913 027 грн
(39 365 за м2)
Поверх
1/14
Тип стін
цегла
Загальна площа
74 м2
Стан
житлове
Тип нерухомості
Офісне приміщення
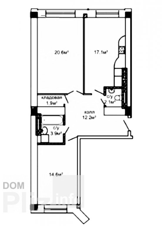
Продаж нежитлового приміщення. Центр Таїрова. Кастанді/АК. Корольова, ЖК Вернісаж.1/14, цегляний будинок, 74 кв.м., два зали 20,6 кв.м. та 17,1 кв.м., кабінет 14,6 кв.м., 2 санвузли, хол 12,2 кв.м., комора, висота приміщень 3 метри. Фасад 1 вікно. Ідеально під стоматологію, магазин, аптеку, салон краси, офіс. ОСББ. Продажа нежилого помещения. Центр Таирова. Кастанди / АК. Королева, ЖК Вернисаж.1/14, кирпичный дом, 74 кв.м., два зала 20,6 кв.м. и 17,1 кв.м., кабинет 14,6 кв.м., 2 санузла, холл 12,2 кв.м., кладовка, высота помещений 3 метра. Фасад 1 окно. Идеально под стоматологию, магазин, аптеку, салон красоты, офис. ОСМД.
Створено : 25.11.2025
2 913 027 грн
(39 365 за м2)
68 750 $
(929 за м2)
БЕСТТ НЕДВИЖИМОСТЬ
посередник
Створено : 25.11.2025
Переглянуті
Продам нежитлове приміщення в Київському районі. 3 станція Люстдорфської дороги. Новий житловий комплекс Альтаїр 3. Будинок зданий, заселений. 1 поверх, 68,6 кв.м. загальної площі. Під будь-який вид діяльності....
25.11.2025
Поверх:
1/25
Загальна
68.6 м2
3 389 704 грн
Предлагается к продаже универсальное коммерческое помещение под любой вид бизнеса! Удобный цокольный этаж с отдельным входом. Идеально подходит для офиса, студии, салона или магазина. В данный момент - действую...
24.11.2025
Поверх:
1/10
Загальна
65 м2
2 330 422 грн
Продам готовый бизнес в Одессе на Таирово. 1й этаж/19-ти этажного нового сданного и заселенного дома. Общая площадь 69 м2, коммерческая 52 м2, три помещения, кухня и санузел. Ремонт, мебель, техника. Просторная...
24.11.2025
Поверх:
1/19
Загальна
68.9 м2
3 516 818 грн
Продаётся коммерческое помещение в жилом комплексе «Тирас», по адресу: ул. Королёва / Инглези. Ранее использовалось как салон красоты — отлично подойдёт для ведения бизнеса в сфере услуг или лёгкой косметологии...
24.11.2025
Поверх:
1/16
Загальна
78 м2
Житлова
50 м2
2 965 991 грн
Популярне на сайті

ОдесаОдеса

КиївКиїв












