Продається офісне приміщення
Одеса, р-н Київський, Костанди ул.
ID: 5252960
3 866 381 грн
(39 413 за м2)
Поверх
1/14
Тип стін
цегла
Загальна площа
98.1 м2
Стан
житлове
Тип нерухомості
Офісне приміщення
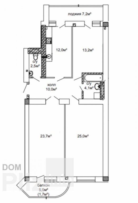
Продаж нежитлового приміщення. Центр Таїрова. Кастанді/АК. Корольова, ЖК Вернисаж.1/14, цегляний будинок, 74 кв.м., 4 кімнати: 25 кв.м., та 23,7 кв.м.,, можна обєднати, 13,2 кв.м., та 12 кв.м. також є можливість обєднати, 2 санвузли, хол 10 кв.м. Висота приміщень 3 метри. Фасад 2 вікна. Ідеально під стоматологію, магазин, аптеку, салон краси, офіс. ОСББ. Продажа нежилого помещения. Центр Таирова. Кастанди / АК. Королева, ЖК Вернисаж.1/14, кирпичный дом, 74 кв.м., 4 комнаты: 25 кв.м., и 23,7 кв.м.,, можно объединить, 13,2 кв.м.,и 12 кв.м. также есть возможность объединить, 2 санузла, холл 10 кв.м.. Высота помещений 3 метра. Фасад 2 окна. Идеально под стоматологию, магазин, аптеку, салон красоты, офис. ОСМД.
Створено : 25.11.2025
3 866 381 грн
(39 413 за м2)
91 250 $
(930 за м2)
БЕСТТ НЕДВИЖИМОСТЬ
посередник
Створено : 25.11.2025
Переглянуті
Продаж приміщення під комерційну діяльність. Академіка Корольова / Центр Таїрова. Ідеально під банк, медичний центр, супермаркет. 106 кв. Фасад 12 метрів, 3 фасадні входи, можлива велика прибудова. Під будь-яки...
25.11.2025
Поверх:
1/9
Загальна
106 м2
6 779 408 грн
В продаже помещение в оживлённом районе, в новом жилом доме, цокольный этаж, общей площадью 92 м2. Можно использовать под офис, салон, спортивный зал и другое. Отдельный вход, все коммуникации. Сейчас клуб един...
24.11.2025
Поверх:
1/15
Загальна
92 м2
3 177 848 грн
Продажа коммерческого помещения в новом жилом комплексе Киевского района. Общая площадь 88,3 м2 с правильной функциональной планировкой. Заведены все необходимые коммуникации, установлены качественные входные д...
24.11.2025
Поверх:
1/17
Загальна
88.3 м2
3 741 386 грн
Предлагается к продаже помещение под коммерцию в ЖК Таировские Сады. Общая площадь 100 м2 Дом сдан. Помещение расположено на первом этаже 17-этажного дома. Помещение двухстороннее, правильной формы. В помещении...
24.11.2025
Поверх:
1/17
Загальна
100 м2
3 389 704 грн
Популярне на сайті

ОдесаОдеса

КиївКиїв










