Продається 2-кімнатна квартира
, Тургенєве, Довженка О. вул.
ID: 5254812
2 416 420 грн
(54 919 за м2)
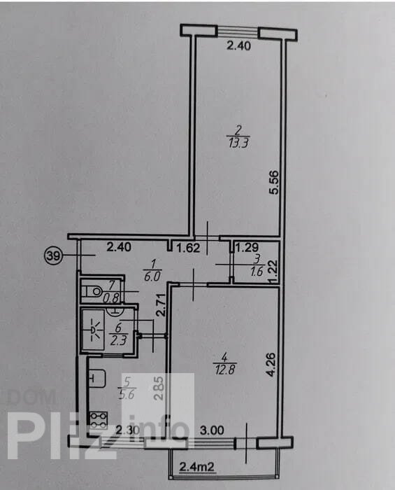
Кіл-ть кімнат
2
Поверх
3/5
Тип стін
цегла
Загальна площа
44 м2
Площа кухні
5.6 м2
Стан
житлове
Тип нерухомості
Вторинний ринок
2 кімнатна квартира 3 пов. з 5 панельного будинку Двохстороння, дуже тепла та затишна Капітальний ремонт Металопластикові вікна, панорамний балкон, броньовані двері Вмістка гардеробна; Якісне освітлення, датчики руху Замінена вся електропроводка, труби та каналізація Італійська сантехніка; Роздільний санвузол, гігієнічний душ Гідромасажний душовий бокс Пралка/сушарка (2в1) Меблі та техніка залишаються Заведений Інтернет та кабельне телебачення Охорона(сигналізація)
Створено : 28.11.2025
2 416 420 грн
(54 919 за м2)
57 200 $
(1 300 за м2)
Оксана
посередник
Створено : 28.11.2025
Переглянуті
Продається затишна 2-кімнатна квартира в центральній частині міста Південний бульвар, 38. Пропоную до вашої уваги чудовий варіант для комфортного проживання або вигідної інвестиції. Квартира розташована на 7-м...
11.12.2025
Кімнат
2
Поверх:
7/9
Загальна
50 м2
3 263 434 грн
Продається 2х кімнатна квартира на Івана Павла 2, м-р Каскад . Чудове розташування поруч Епіцентр Арсен, АТБ, Зупинка, Школа. Знаходиться на 5 поверсі з 9 , центральне опалення. Квартира Готова щоб заїхати т...
06.12.2025
Кімнат
2
Поверх:
5/9
Загальна
52 м2
Кухня
9 м2
2 167 174 грн
Терміновий продаж. В будинку є садочок, до школи 10хв. До центру 10 хв громадським транспортом та 5хв машиною....
30.11.2025
Кімнат
2
Поверх:
3/5
Загальна
39 м2
1 182 863 грн
Затишна 2-кімнатна квартира мікрорайон Пасічна місто Івано-Франківськ. Пропонується до продажу тепла та дуже світла квартира на вторинному ринку з вікнами у тихий двір. Планування продумане до дрібниць: дві про...
28.11.2025
Кімнат
2
Поверх:
3/9
Загальна
50.7 м2
Кухня
7.6 м2
2 492 461 грн
Популярне на сайті

ОдесаОдеса

КиївКиїв















