Продається 2-кімнатна квартира
Кременчук
ID: 5255793
3 234 270 грн
(66 006 за м2)
Кіл-ть кімнат
2
Поверх
2/9
Тип стін
цегла
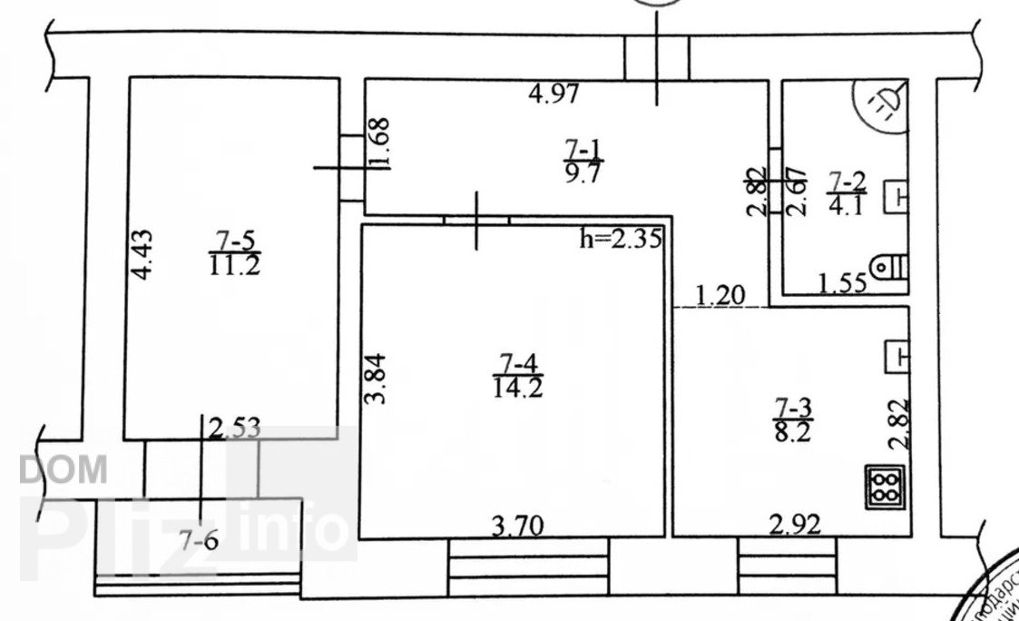
Загальна площа
49 м2
Площа кухні
8 м2
Стан
житлове
Тип нерухомості
Вторинний ринок
Пропоную у продаж затишну квартиру з якісним ремонтом в нагорній частині міста. Зручно перепланована, є достатньо велика кухня, затишна зала і спальня. В оздобленні використані якісні матеріали, виконаний високоякісний сучасний ремонт. Все продумано для затишного та комфортного проживання. В квартирі повністю замінена: - сантехніка з виводом під бойлер та посудомийну машину; - електрика та водний кабель; - труби опалення та радіатори; - підлога: спальня/зала - ламінат; кухняu/ванна кімната/коридорu, лоджія - плитка з керамограниту. В квартирі встановлені: - душова кабіна; - сучасні міжкімнатні двері; - пластикові 2-х камерні вікна (з функцією захисту від дитини); - прохідні вимикачі для комфорту, WiFi роутер та домофон; - електрична тепла підлога на кухні; - вбудовані шафи в коридорі та спальні; - карнизи зі шторами; - виходи під монтаж кондиціонерів; - двоспальне ліжко з ортопедичним матрацом; - підвісна сушка для білизни на лоджії. Додатково зроблено зовнішнє утеплення, квартира дуже тепла. В будинку встановлений індивідуальний лічильник тепла, що дає можливість платити менше за опалення. Вікна квартири виходять на соснові дерева та ранкове сонце. Це ідеальний простір для життя. Поруч три дитячі садочки, один з яких знаходиться у дворі, школа за 5 хвилин ходьби, декілька продуктових магазинів, відділення Нової пошти та банку. Неподалік знаходиться зупинка міського транспорту, адже до зупинки Водоканал менше 7 хвилин, а до зупинки 18 маршруту можна дійти за 5 хвилин. Комфортний та затишний двір з дитячими ігровими майданчиками, а якщо ви бажаєте займатися спортом, то поруч є стадіон та спортивні тренажери.. Вид обєкта: Вторинний ринок;Тип будинку: Житловий фонд 80-90-і;Тип стін: Цегляний;Клас житла: Комфорт;Планування: Роздільна;Cанвузол: Суміжний;Опалення: Централізоване;Ремонт: Євроремонт;Меблювання: Так;Побутова техніка: Холодильник, Варильна панель, Мікрохвильова піч, Духова шафа, Пральна машина;Мультимедіа: Кабельне, цифрове ТБ, Швидкісний інтернет, Wi-Fi;Комфорт: Балкон, лоджія, Ліфт, Підігрів підлоги, Душова кабіна, Сигналізація, Госп. приміщення, комора;Комунікації: Асфальтована дорога, Центральна каналізація, Електрика, Вивіз відходів, Газ, Центральний водопровід;Інфраструктура (до 500 метрів): Відділення банку, банкомат, Аптека, Дитячий садок, Парк, зелена зона, Дитячий майданчик, Відділення пошти, Школа, Магазин, кіоск, Зупинка транспорту;Ландшафт (до 1 км.): Парк;
Оновлене: 09.01.2026
3 234 270 грн
(66 006 за м2)
75 000 $
(1 531 за м2)
Юлія
посередник
Оновлене: 09.01.2026
Переглянуті
2 кімнатна квартира по вул Приходько 95 на 4 поверсі після капітального ремонту з усіма меблями і технікою. Все практично нове б.у один місяць. Дуже тепла квартира.. Вид обєкта: Вторинний ринок;Тип будинку: Хру...
15.01.2026
Кімнат
2
Поверх:
4/5
Загальна
44 м2
Кухня
6 м2
1 552 450 грн
Продаж 2-х кімнатної на Мира. Можливо по Сертіфікату..Продаж 2-х кімнатної квартири по вул. Мира буд. 35. Дуже вдала під перепланування. Можна зробити гардеробну. Окна всі замінені на мu002Fп. Жила лоджа яка ви...
14.01.2026
Кімнат
2
Поверх:
8/9
Загальна
56 м2
Кухня
7 м2
1 586 948 грн
Під комерцію Водоканал 1й поверх, 2кімнати. Червона лінія.Під комерцію. Проспект свободи 14. Водоканал 2х кімнатна 1й поверх. 1не вікно на червону лінію, 2вікна у двір. Є балкон. Звичайний давній житловий стан ...
11.01.2026
Кімнат
2
Поверх:
1/5
Загальна
50 м2
Кухня
5 м2
1 509 326 грн
Продам 2-х комнатную квартиру на Гвардейской.Продам двухкомнатную квартиру в кирпичном доме. Нагорная часть остановка Гвардейская второй этаж , через дорогу школа во дворе детский садик все в шаговой доступност...
09.01.2026
Кімнат
2
Поверх:
2/4
Загальна
41 м2
Кухня
6 м2
1 056 528 грн
Популярне на сайті

ОдесаОдеса

КиївКиїв






















