Продається 1-кімнатна квартира
Одеса, р-н Київський, Люстдорфская дорога
ID: 5255867
2 320 604 грн
(49 375 за м2)
Кіл-ть кімнат
від 1 до 1
Поверх
8/12
Тип стін
Інша
Загальна площа
47 м2
Стан
від будівельників
Тип нерухомості
Вторинний ринок
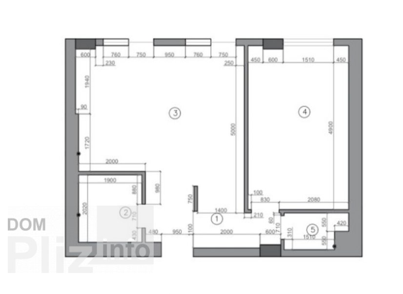
Нотариальная сделка. 1к ЖК Континент / Люстдорфская дорога. 8/12 эт. Общая площадь 47 м. Комната 15 м, кухня-гостиная 21 м. Сан узел совмещен. В квартире сделаны самые сложные работы - электрика, сантехника, стены и выводы под кондиционеры. Дом сдан
Створено : 28.11.2025
2 320 604 грн
(49 375 за м2)
55 000 $
(1 170 за м2)
Ольга
посередник
Створено : 28.11.2025
Переглянуті
1к ЖК Вернисаж/ Костанди. 1 /10 эт. ( внизу полноценный этаж с коммерческой недвижимостью). Общая площадь 46 м. Большая комната 18 ,5 м . Кухня 12 м с выходом на балкон. Сан узел совмещен ( ванна). Есть большая...
26.11.2025
Кімнат
1
Поверх:
1/10
Загальна
46 м2
Житлова
18 м2
Кухня
12 м2
2 320 604 грн
1 к ЖК Розенталь/ Лиманка. 2/7 эт. Общая площадь 42 м. Кухня увеличена за счет балкона. В комнате большой зеркальный шкаф , очень вместительный. Сан узел совмещен. В квартире современный качественный ремонт....
26.11.2025
Кімнат
1
Поверх:
2/7
Загальна
42 м2
Житлова
16 м2
Кухня
14 м2
2 025 254 грн
Переуступка 1к ЖК Розенталь /Лиманка . 4/7 эт. Общая площадь 41 м. Комната 16 м, кухня 12 м. Большая лоджия - можно использовать под кабинет . Красивый вид из окон. В квартире современный ремонт. Очень светла...
26.11.2025
Кімнат
1
Поверх:
4/7
Загальна
41 м2
Житлова
16 м2
Кухня
12 м2
1 751 001 грн
В ПРОДАЖЕ!Большая однокомнатная квартира в Одессе Вузовский район возле фитнес клуба СмайлШикарная локация в тишине частного сектора и к морю 20 минут пешим прогулочным шагом.Общая площадь квартиры 46 кв м и ра...
24.11.2025
Кімнат
1
Поверх:
8/11
Загальна
46 м2
Житлова
22 м2
Кухня
18 м2
1 983 062 грн
Популярне на сайті

ОдесаОдеса

КиївКиїв










