Здам довгостроково офісне приміщення
Київ, р-н Подільський, Ярославская ул., 58
ID: 5260331
1 071 469 грн
К-ть приміщень
10
Поверх
8/11
Тип стін
цегла
Загальна площа
1100 м2
Стан
житлове
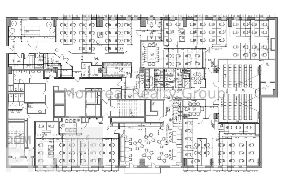
Аренда просторного офиса в центре Киева в Бизнес Центре класса " А + " по адресу улица Ярославская. Этаж 8/11 этажного нежилого здания. Полезная площадь офиса 960.87 м2. Арендуемая площадь 1 105 м2 ( 15 % коэффициент BOMA ). Фотографии и планировка соответствуют реальности. Планировка - open space + рабочие зоны + кабинеты/переговорные, скайп комнаты, конферец зал, кухни, санузлы с душевой кабиной, кладовки, серверная. Состояния - стильный ремонт. Офис оснащен всем необходимым для комфортной и безопасной работы. Отличная транспортная развязка, в пешей доступности остановка общественного транспорта и станция метро Контрактовая площадь 10 минут пешком.Вакантность в этом БЦ:Торговое помещение - 235 м2, 39 м2.Офисы с ремонтом - 1 487 м2, 1 105 м2.Офисы без ремонта - 201 м2.Оснащения Бизнес Центра:1. Система приточно-вытяжной вентиляции с рекупераций.2. Мультизональная система климат-контроля.3. Автономное система отопление.4. Оптоволоконные линии связи.5. Система интеллектуального управления зданием.6. Система контроля доступа.7. Противопожарная система безопасности.8. Круглосуточная физическая охрана.9. Видеонаблюдение (периметр, холл, лифты, места общего пользования, парковка).10. IP телефония, скоростной интернет.11. Лифты - 19 шт., фирмы KONE.12. Подземный паркинг и большая наземная парковка.13. Велопаркинг с душевыми и раздевалками.14. 2 независимых электрических ввода, мощность электросетей 110 Вт/кв.м, с возможностью увеличения до 150 Вт/кв.м.15. 2 генератора.Коммерческие условия:Арендная ставка - 23 $/м2 с эксплуатации + НДС + коммунальные услуги.Номер оголошення на сайті компанії: RC-219-020-DP.
Створено : 10.12.2025
1 071 469 грн
25 400 $
Радион Попов
посередник
Створено : 10.12.2025
Переглянуті
Аренда просторного офиса в центре Киева в Бизнес Центре класса " А " улица Игоревская. Этаж 4/6 этажного нежилого здания. Общая площадь офиса 1090 м2. Фотографии и планировка соответствуют реальности. Планировк...
03.12.2025
Поверх:
4/5
Загальна
1100 м2
831 021 грн
Аренда просторного офиса в центре Киева в Бизнес Центре класса " А + " по адресу улица Ярославская. Этаж 4/11 этажного нежилого здания. Полезная площадь офиса 964.11 м2. Арендуемая площадь 1 108.73 м2 ( 15 % ко...
03.12.2025
Поверх:
4/11
Загальна
1100 м2
1 122 089 грн
Аренда современного офиса в центре Киева на Подоле в новом современном Бизнес Центре класса " В + " по адресу улица Почайнинская. Этаж 9-10/10 этажного нежилого здания. Общая площадь офиса 1095.17 м2. Фотографи...
03.12.2025
Поверх:
9/10
Загальна
1100 м2
831 021 грн
Аренда видового офиса на Подоле в Бизнес Центре класса " А + " по адресу улица Сагайдачного. Этаж 9/9 этажного нежилого здания. Полезная площадь офиса 810 м2. Площадь террасы 87 м2 ( 29 м2 и 58 м2 ). Арендуемая...
03.12.2025
Поверх:
9/9
Загальна
1100 м2
1 349 882 грн
Популярне на сайті

ОдесаОдеса

КиївКиїв
















