Продається 1-кімнатна квартира
Одеса, р-н Приморський, Краснова ул.(ЖК 68 Жемчужина)
ID: 5260729
1 857 859 грн
(45 873 за м2)
Кіл-ть кімнат
1
Поверх
8/24
Тип стін
цегла
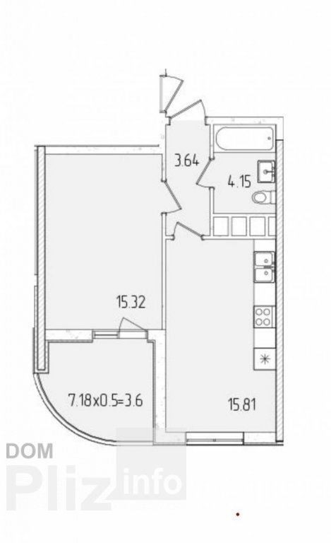
Загальна площа
40.5 м2
Житлова площа
15.32 м2
Площа кухні
15.81 м2
Стан
житлове
Тип нерухомості
Вторинний ринок
Квартира в Кадор Сити на Краснова — вид на ипподром! Представляю отличный вариант в одном из самых востребованных ЖК Одессы — Kadorr City на ул. Краснова. Квартира правильной формы, продуманная планировка, терраса. Характеристики: • Дом бизнес-класса с консьержем и видеонаблюдением • Тихая сторона комплекса Преимущества: • Максимально удобная планировка без лишних коридоров • Много света • Новая современная территория комплекса • Отличная ликвидность и аренда в этом районе. Подойдёт как для комфортной жизни, так и как инвестиция. Посредникам, просьба не беспокоить.
Оновлене: 13.12.2025
1 857 859 грн
(45 873 за м2)
43 950 $
(1 085 за м2)
Премьер Королева, 114
посередник
Оновлене: 13.12.2025
Переглянуті
ул. Говорова. 4/6. Общая площадь 56 кв.м. ЖК «Академгородок». На полу дорогой ламинат. Стены окрашены в современном стиле. Точечное освещение. Встроенная кухня. Санузел совмещен, облицован современной плиткой. ...
13.12.2025
Кімнат
1
Поверх:
4/6
Загальна
49 м2
Житлова
21 м2
4 227 210 грн
Продам уютную квартиру с красивой, охраняемой территорией. Есть детские и спортивные площадки. Хорошая планировка, спальня, кухня и санузел. Ремонт делали под себя. Все что нужно для жизни в шаговой доступности...
13.12.2025
Кімнат
1
Поверх:
7/11
Загальна
42 м2
Житлова
15 м2
Кухня
14 м2
2 832 231 грн
Продается однокомнатная, 42,6м2, Секция 1Б, 20 этаж. В квартире выполнен качественный ремонт и полная комплектация мебелью и бытовой техникой, всё новое, никто не жил! Документы готовы к сделке! Собственник на ...
13.12.2025
Кімнат
1
Поверх:
20/25
Загальна
42 м2
Житлова
14 м2
Кухня
16 м2
2 536 326 грн
Продается 1-комнатная квартира с ремонтом, мебелью и техникой на 9 этаже нового 21-этажного дома в современном комплексе рядом с морем. Дом сдан в эксплуатацию и заселен.Квартира 43,1 кв.м., просторная кухня-ст...
13.12.2025
Кімнат
1
Поверх:
9/21
Загальна
43.1 м2
Житлова
23 м2
3 170 408 грн
Популярне на сайті

ОдесаОдеса

КиївКиїв










