Продається 2-кімнатна квартира
Одеса, р-н Київський, Вильямса Ак. (ЖК Таировские Сады) ул.
ID: 5262591
2 699 443 грн
(39 009 за м2)
Кіл-ть кімнат
2
Поверх
2/17
Тип стін
цегла
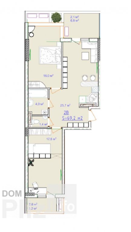
Загальна площа
69.2 м2
Житлова площа
17.5 м2
Стан
житлове
Тип нерухомості
Вторинний ринок
Продается просторная и светлая 2-комнатная квартира в современном жилом комплексе – идеальное сочетание комфорта, стиля и удобного расположения. Общая площадь квартиры составляет 69,2 м², расположена на 2 этаже 17-этажного дома от надежного застройщика. Квартира имеет продуманную планировку, где каждый метр использован с пользой. Просторная кухня с выходом на террасу создает особую атмосферу уюта – здесь можно наслаждаться утренним кофе или вечерним отдыхом просто не выходя из дома. Уютная спальня с выходом на лоджию дарит тишину и комфорт, а собственная кладовая площадью 4,2 м², входящая в стоимость, станет приятным бонусом для хранения вещей или бытовых мелочей. Комплекс отличается ухоженной озелененной территорией, удобными зонами отдыха, детскими и спортивными площадками, а также развитой инфраструктурой рядом – все необходимое для комфортной жизни в нескольких шагах от дома. Эта квартира – отличный выбор для тех, кто ценит качество, комфорт и гармонию в каждой детали. Посредникам, просьба не беспокоить.
Оновлене: 30.01.2026
2 699 443 грн
(39 009 за м2)
63 000 $
(910 за м2)
АН Премьер Королева, 33
посередник
Оновлене: 30.01.2026
Переглянуті
30634. Продам двухкомнатную квартиру в жилом комплексе 49 Жемчужина общей площадью 65.3 кв.м. Выполнен евроремонт из современных качественных материалов. В продаже с мебелью и техникойЖилой комплекс располагае...
27.01.2026
Кімнат
2
Поверх:
14/19
Загальна
65 м2
Житлова
40 м2
Кухня
15 м2
4 476 790 грн
30631. Продам двухкомнатную квартиру в жилом комплексе 49 Жемчужина, площадью 65э4 кв.м. Квартира с евроремонтом. Укомплектована мебелью и техникой.Жилой комплекс предлагает все условия для комфортной жизни: со...
27.01.2026
Кімнат
2
Поверх:
13/19
Загальна
65 м2
Житлова
45 м2
Кухня
12 м2
4 483 646 грн
30568. Продам 2-х комнатную квартиру в 49 Жемчужине. Общая площадь 65,4 кв.м. Выполнен евроремонт из современных качественных материалов. В продаже с мебелью и техникой. Комфортный этаж.Комплекс со спортивными...
27.01.2026
Кімнат
2
Поверх:
2/19
Загальна
65 м2
Житлова
40 м2
Кухня
15 м2
4 483 646 грн
30560. Продается 2-х комнатная квартира в ЖК 46 Жемчужина. Общая площадь 69,6 кв.м. Квартира с ремонтом выполненном из качественных современных материалв. В продаже с мебелью и техникой Территория под круглосут...
27.01.2026
Кімнат
2
Поверх:
15/19
Загальна
70 м2
Житлова
44 м2
Кухня
15 м2
4 771 587 грн
Популярне на сайті

ОдесаОдеса

КиївКиїв











