Продається 2-кімнатна квартира
Полтава, р-н Подільський
ID: 5264173
1 647 559 грн
(32 951 за м2)
Кіл-ть кімнат
2
Поверх
5/10
Тип стін
цегла
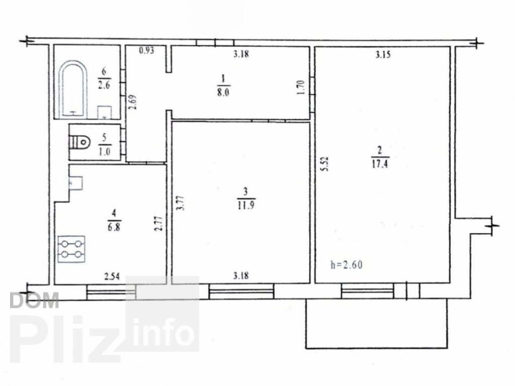
Загальна площа
50 м2
Житлова площа
29 м2
Площа кухні
7 м2
Стан
житлове
Тип нерухомості
Вторинний ринок
Левада, 2 кімнатна квартира, середній поверх. Зручне розташування: поряд супермаркет, зупинка, школа, садок, дитяча лікарня.
Створено : 16.12.2025
1 647 559 грн
(32 951 за м2)
39 000 $
(780 за м2)
Антон
посередник
Створено : 16.12.2025
Переглянуті
2-х кімнатна на Подолі, 2 поверх. Продам 2-х кімнатну квартиру на зручному 2-му поверсі, 47 кв.м, в чудовому районі Подолу. Проведений капітальний ремонт в сучасному стилі лофт. Квартира знаходиться в зручном...
16.12.2025
Кімнат
2
Поверх:
2/5
Загальна
47 м2
Кухня
7 м2
2 238 990 грн
Двухкомнатная квартира. Двушка район Климовка 300 м речка дом двух этажей квартира на первом этаже автономное отопление есть возможность достроить балкон Два года назад был заменен газовый котел батареи трубы и...
16.12.2025
Кімнат
2
Поверх:
1/2
Загальна
42 м2
Кухня
6 м2
844 902 грн
2 кімнатна на Подолі ,2 поверх. 2 кімнатна на Подолі ,2 поверх після капітального ремонту висота стелі 2.6 .Після ремонту ніхто не проживав, усе нове.До зупинки 1 хвилина.Новий техпаспорт.Прописаних немає,докум...
16.12.2025
Кімнат
2
Поверх:
2/5
Загальна
47 м2
Кухня
7 м2
2 365 726 грн
2-х кімнатна на Подолі, 2 поверх. Продам 2-х кімнатну квартиру на зручному 2-му поверсі, 47 кв.м, в чудовому районі Подолу. Проведений капітальний ремонт в сучасному стилі лофт. Квартира знаходиться в зручному ...
16.12.2025
Кімнат
2
Поверх:
2/5
Загальна
47 м2
Кухня
7 м2
2 365 726 грн
Популярне на сайті

ОдесаОдеса

КиївКиїв











