Продається 2-кімнатна квартира
Бориспіль, Київський шлях, 95
ID: 5266982
3 181 290 грн
(37 872 за м2)
Кіл-ть кімнат
2
Поверх
20/20
Тип стін
цегла
Загальна площа
84 м2
Площа кухні
13 м2
Стан
житлове
Тип нерухомості
Вторинний ринок
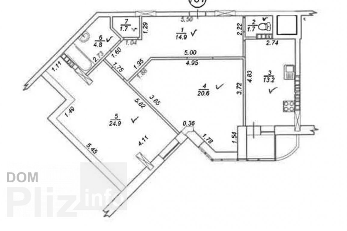
Пропонується до продажу 2-кімнатна квартира в житловому стані, розташована на 20 поверсі 20 – ти поверхового будинку нового планування 2016-2018 року побудови, монолітно-каркасного типу, стіни з червоної цегли, утеплений мінеральною ватою. В підїзді знаходиться три ліфти (один вантажний і два пасажирських). Будинок знаходиться в центрі міста за адресою: Київська область, м. Бориспіль, вул. Київський шлях, 95. Загальна площа 2-х кімнатної квартири 84,7 кв.м. u002F житлова - 45,5 кв.м. (дві ізольовані кімнати - 20,6 кв.м. та 24,9 кв.м.); кухня - 13,2 кв.м.; коридор -14,9 кв.м.; ванна кімната - 4,8 кв.м.; санвузол - 1,7 кв.м.; комора - 1,7 кв.м.; балкон (засклений) – 2,9 кв.м. (вихід на балкон з кухні). Встановлено міжкімнатні двері, на підлозі кухні, коридору та кімнатах лінолеум, на підлозі в санвузлі та ванній кімнаті кахельна плитка. Квартира не кутова, тепла, опалення - власна котельня будинку. Наявні лічильники світла та води. Будинок зданий та введений в експлуатацію. Квартира без боргів та обтяжень, у власності більше 3 років, квартира нова, з моменту побудови ніхто не жив. Навколо будинку паркувальні зони, в середині будинку закрита територія, де знаходиться дитячий майданчик. Поруч, у пішій доступності є все необхідне для комфортного проживання: супермаркет «ФОРА», аптеки, кафе, парк, ринок, школа. Тип будинку: Житловий фонд 2011-2020-і; Назва ЖК: ЖК Київський Шлях; Тип стін: Цегляний; Клас житла: Комфорт; Планування: Роздільна; Cанвузол: Роздільний; Опалення: Власна котельня; Ремонт: Житловий стан; Меблювання: Ні; Побутова техніка: Без побутової техніки; Комфорт: Відеоспостереження, Балкон, лоджія, Ванна, Ліфт, Пожежна сигналізація, Гостьовий паркінг, Грузовий ліфт, Госп. приміщення, комора; Комунікації: Асфальтована дорога, Центральна каналізація, Електрика, Центральний водопровід; Інфраструктура (до 500 метрів): Відділення банку, банкомат, Автовокзал, Кінотеатр, театр, Центр міста, Аптека, Лікарня, поліклініка, Дитячий садок, Ринок, Парк, зелена зона, Дитячий майданчик, Відділення пошти, Ресторан, кафе, Школа, Магазин, кіоск, Супермаркет, ТРЦ, Зупинка транспорту; Ландшафт (до 1 км.): Парк, Річка;
Оновлене: 07.01.2026
3 181 290 грн
(37 872 за м2)
74 000 $
(881 за м2)
Юлия Александровна
посередник
Оновлене: 07.01.2026
Переглянуті
Ясна вул. Продається затишний таунхаус у місті Бориспіль! Таунхаус вже введено в експлуатацію! м.Бориспіль, вулиця Ясна. КМ Паларіс. Загальна площа 77 м2 + гардеробна над сходами. Ділянка: 0,0089 га (паркомісце...
07.01.2026
Кімнат
2
Поверх:
2
Загальна
77 м2
Житлова
40 м2
Кухня
23 м2
2 923 347 грн
Бориспіль, вул. Йови, 1.Продам 2-х кімнатну квартиру 80,9 кв.м. у місті Бориспіль, вул. Йови, 1. Будинок введено в експлуатацію восени 2020 року. Площа: 80,9u002F41,7u002F16,9 кв.м. Мешканцями створене ОСББ. Т...
07.01.2026
Кімнат
2
Поверх:
4/10
Загальна
80 м2
Кухня
16 м2
2 536 434 грн
, Продаж 2 кімн. Квартири в новому будинку ЖК Житловий Будинок № 2 , розташований в м. Бориспіль, по вул. Вокзальна 2. закрита територія , відеоспостереження. цілодобова охорона. Індивідуальне опалення в кожній...
07.01.2026
Кімнат
2
Поверх:
6/10
Загальна
76 м2
Кухня
13 м2
2 128 000 грн
Бориспіль, Бориспіль, вул. Віктора Йови, 1, Продам 2-х кімнатну квартиру 81 кв.м. у місті Бориспіль, вул. Йови, 1. Будинок введено в експлуатацію восени 2020 року. Площа: 81/43/17 кв.м. Мешканцями створене ОСБ...
07.01.2026
Кімнат
2
Поверх:
4/11
Загальна
80 м2
Житлова
43 м2
Кухня
17 м2
2 751 386 грн
Популярне на сайті

ОдесаОдеса

КиївКиїв


























