Продається будинок
Бориспіль, Сосюри
ID: 5267278
4 636 302 грн
(15 454 за м2)
Поверховість
1/4
Тип стін
цегла
Загальна площа
300 м2
Стан
житлове
Тип нерухомості
Будинок
Ділянка:
5
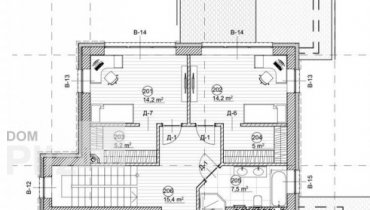
Вашій увазі пропонуємо продаж капітального триповерхового житлового будинку на дві автономні житлові зони. Будинок розташований на земельній ділянці площею 5 соток. Загальна площа будинку 300м2 з них розділено абсолютно на автономні житлові зони з окремим входом. На першому поверсі та другому зроблено ремонт та все для комфортного проживання. По комунікаціях також все у кожного своє включаючи кухню та санвузли. Третій поверх мансардний він без ремонту. Опалення індивідуальне електричне, вода скважина та вигрібна яма. Будинок утеплений, будувався для себе. Перекриття ж/б. За більш детальною інформацією звертайтеся за вказаним телефоном. Будинок 6 кімнат і більше З ремонтом
Створено : 23.12.2025
4 636 302 грн
(15 454 за м2)
110 000 $
(367 за м2)
Юлия Александровна
посередник
Створено : 23.12.2025
Переглянуті
Продам шикарний будинок в центральній частині м.Бориспіль загальною площею 294 м.кв. з гаражом. В будинку на першому поверсі простора вітальня з каміном та виходом на терасу, кухня також з виходом на терасу, ко...
23.12.2025
Поверховість:
1
Загальна
294 м2
Ділянка
10
11 169 273 грн
Продається цегляний будинок у Борисполі на вулиці Ярослава Мудрого, 16 — ідеальне поєднання комфорту, якості та функціональності. Загальна площа будинку становить 200 м?, з додатковим підвалом площею 98 м?, роз...
23.12.2025
Поверховість:
1
Загальна
298 м2
Ділянка
8
6 743 712 грн
м. Бориспіль вул. Амосова Продаж сучасного 2-пов. цегляного будинку, загальною площею 300м2. Ділянка - 10сот. Планування: На 1-поверсі: - гараж та навіс на 2 авто; - кухня-вітальня - 70м2 із виходом криту терас...
23.12.2025
Поверховість:
1
Загальна
300 м2
Ділянка
10
9 694 086 грн
Місто Бориспіль 24 кілометри від міста Києва, поруч з окружною дорогою (40 хвилин пішки до Ж.Д.Вокзалу) продаєтьсґ добротній цегляний будинок збудований на земельній ділянці 10 соток, земля приватизована а буди...
23.12.2025
Поверховість:
1
Загальна
290 м2
Ділянка
10
7 059 824 грн
Популярне на сайті

ОдесаОдеса

КиївКиїв























