Здам довгостроково офісне приміщення
Київ, р-н Солом'янський, Гетьмана, 6
ID: 5274686
432 грн
Поверх
6/10
Тип стін
цегла
Загальна площа
4700 м2
Стан
житлове
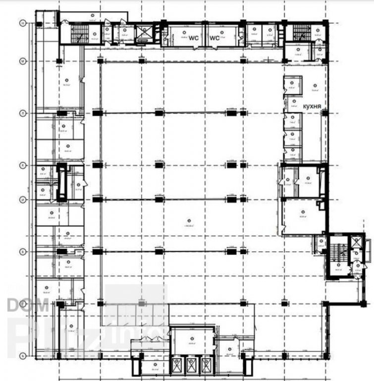
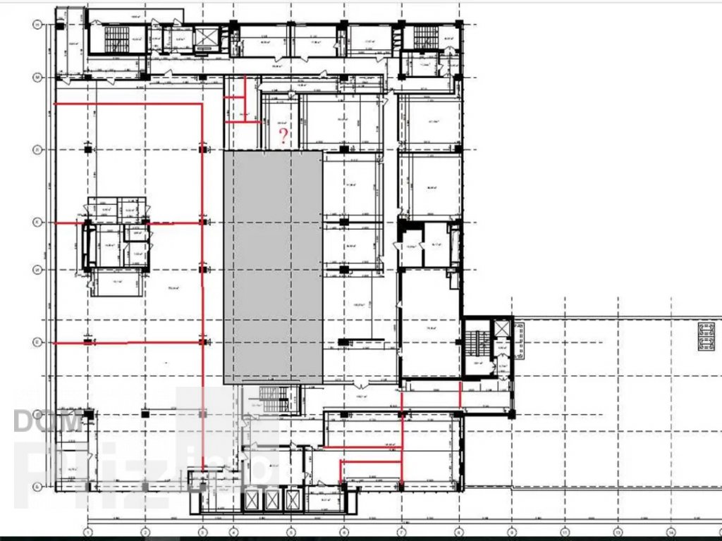
Офис с генератором, ЛОФТ 4700 м2. метро Шулявская, ТРЦ Соsmo Multimoll. Автономное энергообеспечение!!! При отключении подачи централизованного электричества, автоматически включается дизельный генератор, который обеспечивает комфортную, бесперебойную работу офиса !!! Бизнес центр Соsmo Multimoll , на базе торгово-развлекательного комплекса Соsmo multimoll, предлагает офисные помещения с ремонтом Лофт и развитой инфраструктурой. Адрес: В. Гетьмана, 6, до метро Шулявская, 7 минут. Арендаторы могут пользоваться большим паркингом, ресторанами, кафе. В здании имеется комплекс из самых больших конференц залов в Киеве, а также отель, для размещения гостей и партнеров. Предлагаем офисное помещение, которое размещено на 6 и 7 этажах и занимает 4700 кв.м. Открытая планировка с комнатами переговоров, отдельные кабинеты, зона рецепции, просторная оборудованная кухня, 2 больших сан. узла, гардеробная, на каждом этаже. Арендная ставка - 4 долл/кв.метр + НДС Орех - 6 долл/кв.метр + НДС Коммунальные оплачиваются отдельно. Пропозиція без комісії для орендарів.
Створено : 14.01.2026
432 грн
10 $
Віктор
посередник
Створено : 14.01.2026
Переглянуті
Офіс в оренду 500 м2. Ультрамаркет. Монастирського. Бізнес-центр розташований у Солом`янському районі Києва, за адресою вул. Монастирського (Сурикова), 3а. 5 хвилин пішки до Солом`янської площі або 15 хвилин до...
14.01.2026
Поверх:
3/4
Загальна
500 м2
200 грн
Общая площадь 360 м2 (возможно деление пополам) Н=3м Помещения с удобной кабинетной планировкой с ремонтом и панорамным видом. Ранее помещения использовались под детский сад. Три больших балкона и выход на терр...
14.01.2026
Поверх:
3/25
Загальна
360 м2
302 грн
Здаємо в оренду офісний блок для креативної компанії в стилі лофт. Бізнес центр в Соsmo, на базі торгівельно-розважального комплексу Соsmo multimoll. Адреса: В. Гетьмана, 6, до метро Шулявська, 7 хвилин пішки. ...
14.01.2026
Поверх:
4/9
Загальна
240 м2
518 грн
Оренда приміщення під офіс на Соломянській площі !!!БЕЗ ВІДКЛЮЧЕНЬ!!!. Пропонуємо оренду офісу в бізнес-центрі за адресою: вул. В. Липківського, 45 (Соломянська площа, м. Вокзальна). Загальна площа: 486 м2 - По...
14.01.2026
Поверх:
8/9
Загальна
486 м2
250 грн
Популярне на сайті

ОдесаОдеса

КиївКиїв


























