Продається 1-кімнатна квартира
, Тургенєве, Надрічна вул.
ID: 5275715
2 350 236 грн
(51 092 за м2)
Кіл-ть кімнат
1
Поверх
13/15
Тип стін
цегла
Загальна площа
46 м2
Площа кухні
17 м2
Стан
житлове
Тип нерухомості
Вторинний ринок
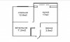
Продається простора світла 1, 5 к. квартира з хорошим ремонтом в сучасному ЖК Княгинин!( 2-га черга, 22 секція) Розташована в закритому від автомобільного руху дворі, з великими зонами відпочинку для всієї родини. Ідеальне місце для життя, всього 3 хв до річки та 7 хв до центру! Поверх 13 з 15 Площа 46, 3 м2 Кухня 17 м2 Спальня 12, 6 м2 Гостинна 7, 2 м2 Ванна 3, 84 м2 Лоджія 3м2 Особливістю планування є додаткова невелика гостинна (7, 2м2, ) яка може слугувати дитячою кімнатою! Продуманий ремонт з якісних матеріалів! 4 контури теплої підлоги. Конденсаційний котел Italterm Smart. Прокладено дві траси під кондиціонери(кухня, спальня) Комунукації всі запущені, будинок зданий, можна облаштовувати меблями і заселятися. У всіх сусідів ремонт зроблений, нерви будуть збережені:) Чудовий вигляд на бульвар Молодості! Квартира внутрішня, на сонячну сторону, світла та тепла! Поблизу є невелика лісопаркова зона та річка, багато місць для відпочинку на свіжому повітрі, прогулянок і заняття спортом. В цьому ж жк є дитячий садок, салони краси, магазини, кафе, супермаркет Таврія В, неподалік школа. Секції будівель утворюють затишні двори, в яких обладнуються спортивні та дитячі майданчики. Двори без авто завдяки підземному паркінгу! Ще діє договір переуступки.
Створено : 14.01.2026
2 350 236 грн
(51 092 за м2)
54 500 $
(1 185 за м2)
Оксана
посередник
Створено : 14.01.2026
Переглянуті
Продаж 1 к квартири ЖК Княгинин 10 поверх з 13 Площа 36 квадратів по БТІ Здана Секція 17, готова до ремонту Діє переуступка Вікна на новий міст....
15.01.2026
Кімнат
1
Поверх:
10/13
Загальна
36 м2
Кухня
12 м2
1 569 699 грн
Продаж 1 кімнатної квартири ЖК Княгинин Секція 26 Поверх 14 Здача літо цього року Вже можна подивитися планування і планувати ремонт...
15.01.2026
Кімнат
1
Поверх:
14/14
Загальна
39 м2
Кухня
13 м2
1 293 665 грн
Продаю квартиру, по ціні нижче ніж у забудовника. -Зручний 3-ій поверх. -Балкон, який можна назвати невеликою терасою; -Секція Б1(здача весною). Продаж 1-кімнатної квартири в ЖК “Manhattan UP”, Івано-Франківськ...
14.01.2026
Кімнат
1
Поверх:
3/8
Загальна
38 м2
Кухня
20 м2
1 612 780 грн
Популярне на сайті

ОдесаОдеса

КиївКиїв






















