Продається 3-кімнатна квартира
, Тургенєве, Хіміків вул., 35А
ID: 5276141
3 471 416 грн
(39 049 за м2)
Кіл-ть кімнат
3
Поверх
9/10
Тип стін
цегла
Загальна площа
88.9 м2
Площа кухні
12.3 м2
Стан
житлове
Тип нерухомості
Вторинний ринок
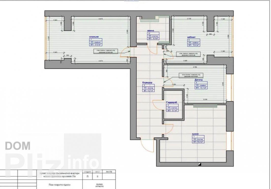
Продається трикімнатна квартира (сирець) , 9 поверх з 10 -ти у м.Івано-Франківськ , вул.Хіміків 35А. Є всі документи. Квартира суха та дуже тепла . Можливе перепланування квартири( див.фото 5). На поверсі є комора - 5,2 кв.м.Плитка постелена та встановлені металічні двері. Великий гараж -71, 2 кв.м. у будинку. Будинок на 50% заселений , ліфт працює. В квартирі встановлені лічильники, є газовий котел. Квартира знаходиться в затишному спальному районі.Поруч 100м від будинку дитячий садочок та коледж. У дворі облаштований дитячий майданчик. 500 м від будинку річка та зона відпочинку.
Створено : 14.01.2026
3 471 416 грн
(39 049 за м2)
80 000 $
(900 за м2)
Оксана
посередник
Створено : 14.01.2026
Переглянуті
Продається видова, панорамна 3-х кімнатна квартира у ЖК Паркова алея м.Івано-Франківськ. Загальна площа - 85 м.кв. Новобудова. Стан -сирець. 9 поверх. Здана в експлуатацію. Дуже гарне планування. У ясну погод...
14.01.2026
Кімнат
3
Поверх:
9/11
Загальна
85 м2
Кухня
15 м2
3 688 380 грн
Квартира 90м2 продаю, спальня,дитяча, велика простора кухня студія, санвузол суміжний великий, більшість меблів та техніки залишається...
14.01.2026
Кімнат
3
Поверх:
6/6
Загальна
90 м2
Кухня
32 м2
3 471 416 грн
Продам трикімнатну квартиру в ЖК city by blago, в топовій локації, в найзручнішому районі міста нац гвардії / вхід в парк шевченка / коновальця / сорохтея . Вся інфраструктура плюс. Найоптимальніший третій пов...
14.01.2026
Кімнат
3
Поверх:
3/5
Загальна
80 м2
Кухня
28 м2
3 636 308 грн
Пропонується простора трикімнатна квартира в м. Івано Франківськ у сучасному житловому комплексі «Парковий» за адресою вул. Вірастюка, 1. Загальна площа: 86 м #178; Поверх: 2 Будинок: новобудова (житловий фонд...
14.01.2026
Кімнат
3
Поверх:
2/10
Загальна
86 м2
Кухня
17.6 м2
2 885 615 грн
Популярне на сайті

ОдесаОдеса

КиївКиїв













