Продається 4-кімнатна квартира
, Тургенєве, Паркова вул.
ID: 5276441
2 516 095 грн
(16 026 за м2)
Кіл-ть кімнат
4
Поверх
10/10
Тип стін
цегла
Загальна площа
157 м2
Площа кухні
40 м2
Стан
житлове
Тип нерухомості
Вторинний ринок
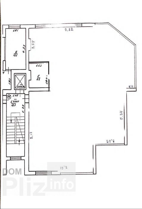
Продається велика мансарда у будинку по вул. Паркова. (Позаду НК «Ельдорадо») будинку 14 років Площа самої квартири 157м2 +100м2 корисної площі Разом з квартирою отримуєте буд. матеріали для теплої підлоги та утеплення. зручне розташування в плані транспортного сполучення. Поруч школи, садочки, магазини, зупинка громадського транспорту, парк та річка.
Створено : 14.01.2026
2 516 095 грн
(16 026 за м2)
58 275 $
(371 за м2)
Оксана
посередник
Створено : 14.01.2026
Переглянуті
Продається дворівнева квартира мебльована. Повністю готова для проживання. Поруч є садочок, школа, супермаркет., лікаря. Все в пішій доступності Також є гараж за додаткову плату....
14.01.2026
Кімнат
4
Поверх:
5/6
Загальна
160 м2
Кухня
25 м2
6 044 668 грн
Продається Пентхаус 159м2 в ЖК Манхетен ,біля озера ! Елітний будинок (всього 2 пентхауса на поверсі) Висота стелі 3м ! Панорамні вікна з краєвидом на гори ,озеро і місто ;) Кухня-студія і 3 повноцінні спальні ...
14.01.2026
Кімнат
4
Поверх:
16/16
Загальна
159 м2
Кухня
40 м2
10 310 477 грн
Квартира, деталі по телефону...
14.01.2026
Кімнат
4
Поверх:
9/10
Загальна
162.4 м2
Кухня
30 м2
8 117 126 грн
Продається простора 4-кімната двоповерхова квартира в центрі міста на затишній вул. Крука (між вул. Шевченка та Чорновола, біля роддому). - деревяна підлога, двері і меблі - шкіряні мякі меблі в гостинній - кам...
14.01.2026
Кімнат
4
Поверх:
4/4
Загальна
162 м2
Кухня
18 м2
8 635 240 грн
Популярне на сайті

ОдесаОдеса

КиївКиїв







