Продається 5-кімнатна квартира
, Тургенєве
ID: 5277400
3 410 920 грн
(20 064 за м2)
Кіл-ть кімнат
5
Поверх
9/10
Тип стін
цегла
Загальна площа
170 м2
Площа кухні
47 м2
Стан
житлове
Тип нерухомості
Вторинний ринок
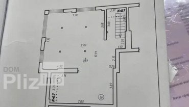
Якщо ви хочете бути в курсі найважливіших подій , то ця квартира саме для Вас. Продається простора дворівнева квартира в сучасному житловому комплексі в самому центрі Івано-Франківська.Перший рівень -світла кухня-студія з вітальною зоною площею 47 м.кВ. Другий рівень площею 123 м.кВ. , що дає можливість облаштувати чотири окремих спальні ,велику гардеробну кімнату та санвузли. На території передбачено місце для довільного паркування машин, цілодобова система відеонагляду , дитячий майданчик.Двір закритий і затишний. До ваших послуг вся інфраструктура центру міста: відділення банків, банкомати,кінотеатр,театр,ресторани, кафе , магазини, дитячий садок та школи, зупинка громадського транспорту. Квартира чудово підійде як для особистого проживання , так і як інвестиція під оренду.Переуступка. Телефонуйте щоб домовитись про перегляд.
Створено : 14.01.2026
3 410 920 грн
(20 064 за м2)
79 000 $
(465 за м2)
Оксана
посередник
Створено : 14.01.2026
Переглянуті
Продам велику, простору, 2х рівневу квартиру в ЖК «Патріот» ( вул.Довженка). Сірець. Вільне планування 2-го поверху • Площа: 86+75 м2 (478 $ за м2) • Можливість розділити на 2 або 3 квартири. • Поверх: 10-11 • ...
14.01.2026
Кімнат
5
Поверх:
10/11
Загальна
161 м2
Кухня
35 м2
3 018 016 грн
Продається дворівнева простора квартира у житловому комплексі Євро Сіті 1 черга , будинок зданий та введений у експлотацію , всі сусіди вже заселилися, не буде надокучати шум ремонту, у будинку працює ліфт . Жи...
14.01.2026
Кімнат
5
Поверх:
9/9
Загальна
165 м2
Кухня
40 м2
9 498 764 грн
Продається дворівнева квартира загальною площею 178.8 м.кВ Повноцінний другий поверх . 1 поверх - виконані роботи по опаленню (батареї 5 шт ) та водопостачанню і каналізації (вмонтована інсталяція під туалет) з...
14.01.2026
Кімнат
5
Поверх:
7/8
Загальна
178.8 м2
Кухня
17 м2
5 915 139 грн
Популярне на сайті

ОдесаОдеса

КиївКиїв






