Здам довгостроково офісне приміщення
Київ, р-н Шевченківський, Пимоненко Николая ул., 13
ID: 5278915
233 115 грн
К-ть приміщень
4
Поверх
4/6
Тип стін
цегла
Загальна площа
370 м2
Стан
житлове
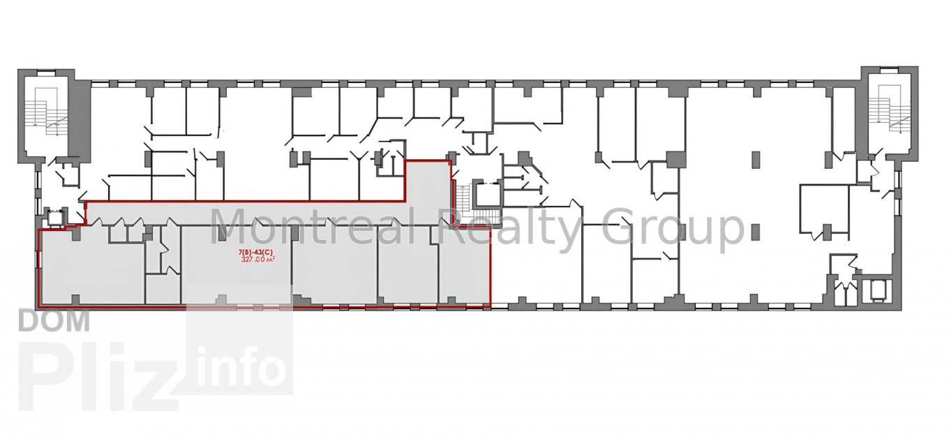
Аренда просторного офиса в центре Киева в Бизнес центре класса " В + " по адресу улица Николая Пимоненко. Этаж 4/6 этажного нежилого здания. Полезная площадь офиса 327 м2. Арендуемая площадь 366.24 м2 ( 12 % коэффициент BOMA ). Фотографии и планировка соответствуют реальности. Планировка - рабочие зоны + кабинеты/переговорные, кухня, санузлы, кладовки, серверная. Состояния - хороший офисный ремонт. Офис оснащен всем необходимым для комфортной и безопасной работы. Отличная транспортная развязка, в пешей доступности остановка общественого транспорта и станция метро Лукьяновская 10 минут пешком.Вакантность в этом БЦ - 29 м2, 60 м2, 84 м2, 92 м2, 100 м2, 122 м2, 123 м2, 228 м2, 260 м2, 300 м2, 293 м2, 330 м2, 333 м2, 348 м2, 355 м3, 366 м2, 377 м2, 406 м2, 446 м2, 491 м2, 693 м2, 750 м2, 865 м2, 1 103 м2.Оснащения Бизнес Центра:1. Система приточно-вытяжной вентиляции.2. Система кондиционирования.3. Автономная система отопления с терморегуляторами.4. Оптоволоконные линии связи.5. Система контроля доступа.6. Противопожарная система7. Круглосуточная физическая охрана.8. Видеонаблюдение (периметр, холл, лифты, места общего пользования, парковка).9. Лифты - 10 шт., фирмы OTIS.10. Большая наземная парковка.11. 2 независимых источника энергии.12. Генератор.Коммерческие условия:Арендная ставка - 14.72 $/м2 с эксплуатации + НДС + коммунальные услуги.Номер оголошення на сайті компанії: RC-165-741-DP.
Створено : 05.02.2026
233 115 грн
5 400 $
Радион Попов
посередник
Створено : 05.02.2026
Переглянуті
Аренда просторного офиса в Бизнес Центре класса " В " по адресу улица Елены Телиги. Этаж 2/5 этажного нежилого здания. Полезная площадь офиса 312.60 м2. Арендуемая площадь 353.24 м2 ( 13 % коэффициент BOMA ). Ф...
05.02.2026
Поверх:
2/5
Загальна
360 м2
254 700 грн
Аренда современного офиса в центре Киева в Бизнес центре класса " В + " по адресу улица Николая Пимоненко. Этаж 3/6 этажного нежилого здания. Полезная площадь офиса 317.71 м2. Арендуемая площадь 355.84 м2 ( 12 ...
05.02.2026
Поверх:
3/6
Загальна
360 м2
226 640 грн
Аренда современного офиса в центре Киева в клубном доме премиум по адресу улица Ивана Франка. Этаж 2/7 этажного здания. Общая площадь офиса 375 м2. Фотографии и планировка соответствуют реальности. Планировка -...
05.02.2026
Поверх:
2/7
Загальна
380 м2
474 865 грн
Аренда современного офиса в центре Киева в Бизнес Центре класса " В " по адресу улица Владимирская. Этаж 4/8 этажного нежилого здания. Общая площадь офиса 374.75 м2. Фотографии и планировка соответствуют реальн...
05.02.2026
Поверх:
4/8
Загальна
380 м2
375 575 грн
Популярне на сайті

ОдесаОдеса

КиївКиїв

















