Здам довгостроково офісне приміщення
Київ, р-н Печерський, Евгения Коновальца ул., 36Д
ID: 5279092
237 432 грн
К-ть приміщень
4
Поверх
3/9
Тип стін
цегла
Загальна площа
240 м2
Стан
житлове
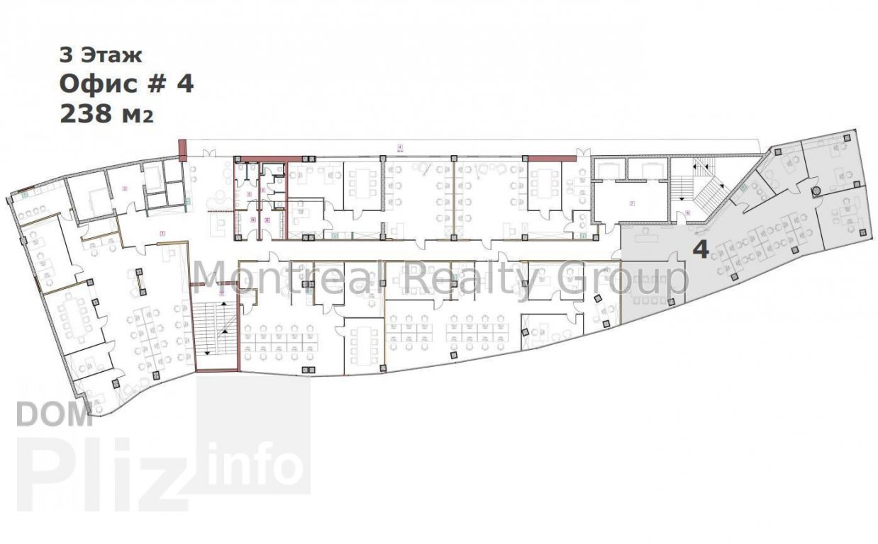
Аренда стильного офиса в центре Киева в новом Бизнес Центра класса " В + " по адресу улица Евгения Коновальца ( Щорса ). Этаж 3/9 этажного нежилого здания. Общая площадь офиса 238 м2. Фотографии и планировка соответствуют реальности. Планировка - open space + кабинеты/переговорные, ресепшен, кухня, санузлы, кладовки, серверная. Состояния - стильный, дорогой ремонт. Офис оснащен всем необходимым для комфортной и безопасной работы. Каждый этаж имеет кухню ( укомплектованную техникой и фильтрами питьевой воды ), санузлы, выход на террасу. Предусмотрен гостевой Wi-Fi. Отличная транспортная развязка, в пешей доступности станция метро Печерская 1 минута пешком.Аренда офиса в данном БЦ – отличный вариант для развития бизнеса. И это неудивительно, ведь в данном БЦ можно найти помещение нужной площади со всеми необходимыми условиями для работы в современном и презентабельном помещении.Офисы от 80 м2 – до 440 м2.Комбинированная планировка ( входная зона, рецепция, open space, кабинеты, комнаты для переговоров, кофе-пойнт или мини-кухня, терраса или балкон ), укомплектованы серверные шкафы, встроенная мебель, дизайнерские элементы интерьера и освещения. Офисы оснащены системой СКД, охранной системой Ajax и видеонаблюдением. Централизованная система пожарной безопасности. Индивидуальная система кондиционирования и приточно-вытяжная вентиляционная система.Коммерческие условия:Арендная ставка - 23 $/м2 с эксплуатации + НДС + коммунальные услуги.Номер оголошення на сайті компанії: RC-198-871-DP.
Створено : 05.02.2026
237 432 грн
5 500 $
Радион Попов
посередник
Створено : 05.02.2026
Переглянуті
Аренда современного офиса в центре Киева в Бизнес Центре класса " А + " по адресу улица Болсуновская ( Сергея Струтинского ). Этаж 7/19 этажного нежилого здания. Общая площадь офиса 244.07 м2. Фотографии и план...
05.02.2026
Поверх:
7/19
Загальна
250 м2
379 892 грн
Аренда современного офиса в центре Киева по адресу улица Иоанна Павла II ( Патриса Лумумбы ). Этаж 2/2 этажного нежилого здания. Общая площадь офиса 235 м2. Фотографии и планировка соответствуют реальности. Пла...
05.02.2026
Поверх:
2/2
Загальна
240 м2
561 204 грн
Аренда современного офиса в центре Киева по адресу улица Иоанна Павла II ( Патриса Лумумбы ). Этаж 2/2 этажного нежилого здания. Общая площадь офиса 222 м2. Фотографии и планировка соответствуют реальности. Пла...
05.02.2026
Поверх:
2/2
Загальна
230 м2
474 865 грн
Аренда современного офиса в центре Киева в Бизнес Центре класса " В + " по адресу Спортивная площадь. Этаж 2/7 этажного нежилого здания. Общая площадь офиса 240 м2. Фотографии и планировка соответствуют реально...
05.02.2026
Поверх:
2/7
Загальна
240 м2
228 798 грн
Популярне на сайті

ОдесаОдеса

КиївКиїв


















