Здам довгостроково офісне приміщення
Київ, р-н Шевченківський, Сечевых Стрельцов ул., 50
ID: 5279309
315 137 грн
К-ть приміщень
18
Поверх
4/10
Тип стін
цегла
Загальна площа
400 м2
Стан
житлове
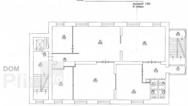
Аренда просторного офиса в центре Киева в Бизнес Центре класса " В + " по адресу улица Сечевых Стрельцов ( Артема ). Этаж 4-5/10 этажного нежилого здания. Общая площадь офиса 404 м2. Фотографии и планировка соответствует реальности. Планировка - рабочие зоны + кабинеты/переговорные, холл, кухня, санузлы, кладовки, серверная. Состояние - хороший офисный ремонт. Отличная транспортная развязка, в пешей доступности остановка общественного транспорта и станция метро Лукьяновская 10 минут пешком.Вакантность в этом БЦ - 187 м2, 202 м2.Оснащения Бизнес Центра:1. Система приточно-вытяжной вентиляции.2. Система кондиционирования.3. Оптоволоконные линии связи4. Система контроля доступа в здании.5. Противопожарная система безопасности.6. Круглосуточная физическая охрана.7. Видеонаблюдение.8. Лифты - 2 шт., фирмы OTIS.9. Подземный паркинг и наземная парковка.10. Генератор.Коммерческие условия:Арендная ставка - 18 $/м2 + эксплуатация - 72 грн./м2 + коммунальные услуги.Номер оголошення на сайті компанії: RC-209-464-DP.
Створено : 05.02.2026
315 137 грн
7 300 $
Радион Попов
посередник
Створено : 05.02.2026
Переглянуті
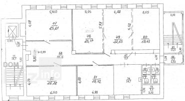
Оренда офісу в пішій доступності від станції метро Берестейська, площа 393 м2. Безпечне місце. Два офіса один над одним 196 та 197 кв.м. корисної площі. Після косметичного ремонту. Змішана система кабінети + за...
05.02.2026
Поверх:
3/5
Загальна
393 м2
150 000 грн
Аренда просторного офиса на Нивках в Бизнес Центре класса " В + " по адресу Берестейский проспект ( проспект Победы ). Этаж 13/13 этажного нежилого здания. Общая площадь офиса 400 м2. Фотографии и планировка со...
05.02.2026
Поверх:
13/13
Загальна
400 м2
172 678 грн
Аренда просторного офиса в центре Киева в Бизнес Центра класса " В " по адресу улица Владимирская. Этаж 4/7 этажного нежилого здания. Общая площадь офиса 400 м2. Фотографии и планировка соответствуют реальности...
05.02.2026
Поверх:
4/7
Загальна
400 м2
364 782 грн
Аренда просторного офиса в центре Киева в Бизнес Центра класса " В " по адресу улица Владимирская. Этаж 2/7 этажного нежилого здания. Общая площадь офиса 400 м2. Фотографии и планировка соответствуют реальности...
05.02.2026
Поверх:
2/7
Загальна
400 м2
362 624 грн
Популярне на сайті

ОдесаОдеса

КиївКиїв


















