Здам довгостроково офісне приміщення
Київ, р-н Печерський, Василия Тютюнника ул., 28Б
ID: 5279505
1 925 360 грн
К-ть приміщень
25
Поверх
1/5
Тип стін
цегла
Загальна площа
1900 м2
Стан
житлове
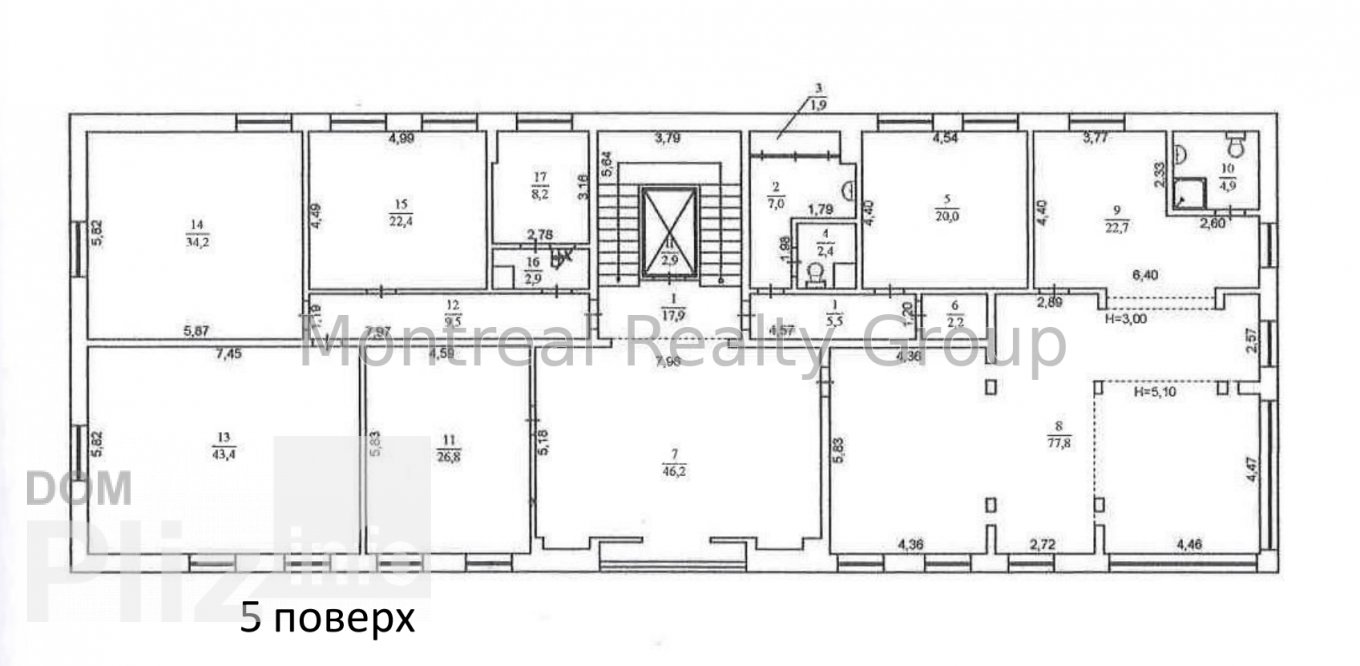
Аренда офисного здания в центре Киева по адресу улица Василия Тютюнника ( Анри Барбюса ). 5 этажей. Общая площадь здания 1 857 м2. Фотографии и планировка соответствуют реальности. Планировка - рабочие зоны + кабинеты/переговорные, кухни, санузлы, серверная. Состояние - хороший офисный ремонт. Здание оснащена системой кондиционирования и вентиляция, автономное отопление, лифтом, пожарной и охранной сигнализации, системой СКД. Территория здания ограждена, на территории пост охраны, шлагбаум, видеонаблюдение. Количество машиномест для парковки - 25 места. Отличная транспортная развязка, в пешей доступности остановка общественного транспорта и станция метро Палац Украина 10 минут пешком.Коммерческие условия:Арендная ставка - 24 $/м2 с экспуатации + НДС + коммунальные услуги.Номер оголошення на сайті компанії: RC-167-405-DP.
Створено : 05.02.2026
1 925 360 грн
44 600 $
Радион Попов
посередник
Створено : 05.02.2026
Переглянуті
Печерськ, станція метро Звіринецька, бульвар Міхновського. Офіс площа 388 м2, з урахуванням коридорного коеф-ту. Кабінетна система. Знаходиться в оточенні офісів великих міжнародних та вітчизняних корпорацій, н...
05.02.2026
Поверх:
7/12
Загальна
388 м2
561 грн
Офис 5500 м2. Фасад,отдельный вход. метро Зверинецкая (Дружбы народов). Престижный офис для крупной компании расположен в центральной, деловой части Киева. Адрес: пр. Михновского (Дружбы народов), 38. Площадь 5...
05.02.2026
Поверх:
1/12
Загальна
5500 м2
389 грн
Преміальний офіс 550 м2 у центрі Києва з терасами та паркінгом-бомбосховищем Локація: Бульвар Лесі Українки, 7-Б (Печерськ) — серце ділового Києва. Офіс розташований на 3-му поверсі. Нежитловий фонд. Поруч бізн...
05.02.2026
Поверх:
3/20
Загальна
550 м2
518 грн
Пропонуємо в оренду офіс площею 924 кв.м., з ремонтом на 5-му поверсі сучасного БЦ. Бізнес центр розташований в історичній частині Києва та в центральному діловому районі столиці. Поряд з бізнес центром розташо...
05.02.2026
Поверх:
5/6
Загальна
924 м2
777 грн
Популярне на сайті

ОдесаОдеса

КиївКиїв





















