Здам довгостроково офісне приміщення
Київ, р-н Шевченківський, Зоологическая ул., 5/1
ID: 5279524
945 412 грн
К-ть приміщень
14
Поверх
5/13
Тип стін
цегла
Загальна площа
1100 м2
Стан
житлове
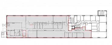
Аренда современного офиса в центре Киева в Бизнес Центре класса " В + " по адресу улица Зоологическая. Этаж 5/13 этажного нежилого здания. Общая площадь офиса 1 155 м2. Фотографии и планировка соответствуют реальности. Планировка - open space + рабочие зоны + кабинеты/переговорные, кухни, санузлы, кладовки, серверная. Состояния - современный ремонт. Офис оснащен всем необходимым для комфортной и безопасной работы. Отличная транспортная развязка, в пешей доступности остановка общественного транспорта и станции метро Политехнический Институт и Лукьяновская 10-15 минут пешком.Вакантность в этом БЦ - 555 м2, 600 м2, 1 155 м2.Оснащения Бизнес Центра:1. Система кондиционирования при помощи фанкойлов.2. Система приточно-вытяжной вентиляции.3. Автономное отопление.4. Оптоволоконные линии связи.5. Система контроля доступа.6. Противопожарная система безопасности.7. Круглосуточная физическая охрана.8. Видеонаблюдение (периметр, холл, лифты, места общего пользования, парковка).9. Лифты - 4 шт., фирмы Shindler.10. Подземный паркинг и наземная парковка.11. Бесперебойное электричество.12. Генератор.Коммерческие условия:Арендная ставка - 19 $/м2 с эксплуатации + НДС + коммунальные услуги.Номер оголошення на сайті компанії: RC-216-078-DP.
Створено : 05.02.2026
945 412 грн
21 900 $
Радион Попов
посередник
Створено : 05.02.2026
Переглянуті
Аренда современного офиса в центре Киева в Бизнес Центре класса " В + " по адресу улица Большая Васильковская. Этаж 8/9 этажного нежилого здания. Общая площадь офиса 1 114 м2. Фотографии и планировка соответств...
05.02.2026
Поверх:
8/9
Загальна
1100 м2
528 826 грн
Аренда отдельно стоящего офисного здания в центре Киева по адресу улица Владимира Мономаха ( Отто Шмидта ). 4 этажа. Общая площадь здания 1084 м2. Фотографии и планировка соответствуют реальности. Планировка - ...
05.02.2026
Поверх:
1/4
Загальна
1100 м2
690 712 грн
Аренда просторного офиса в Бизнес центре класса " В + " по адресу улица Николая Пимоненко. Этаж 6/6 этажного нежилого здания. Полезная площадь офиса 985.67 м2. Арендуемая площадь 1 103.95 м2 ( 10 % коэффициент ...
05.02.2026
Поверх:
6/6
Загальна
1100 м2
701 504 грн
Популярне на сайті

ОдесаОдеса

КиївКиїв

















