Здам довгостроково офісне приміщення
Київ, р-н Печерський, Леси Украинки бул., 23
ID: 5279553
202 897 грн
К-ть приміщень
6
Поверх
4/5
Тип стін
цегла
Загальна площа
240 м2
Стан
житлове
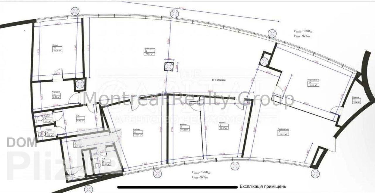
Аренда современного офиса в центре Киева в Бизнес Центре класса " В + " по адресу Бульвар Леси Украинки. Этаж 4/5 этажного нежилого здания. Общая площадь офиса 232 м2. Фотографии и планировка соответствуют реальности. Планировка - open space + рабочие зоны + кабинеты/переговорные, кухня, санузлы, кладовки, серверная. Состояния - современный ремонт и мебель. Офис оснащен всем необходимым для комфортной и безопасной работы. Отличная транспортная развязка, в пешей доступности остановка общественного транспорта и станция метро Печерская 5 минут пешком.Оснащения Бизнес Центра:1. Система кондиционирования.2. Система приточно-вытяжной вентиляции.3. Оптоволоконные линии связи.4. Система контроля доступа.5. Противопожарная система безопасности.6. Круглосуточная физическая охрана.7. Видеонаблюдение.8. Лифты - 1 шт., фирмы KONE.9. Подземный паркинг и наземная парковка.Коммерческие условия:Арендная ставка - 20 $/м2 + коммунальные услуги.Номер оголошення на сайті компанії: RC-108-984-DP.
Створено : 05.02.2026
202 897 грн
4 700 $
Радион Попов
посередник
Створено : 05.02.2026
Переглянуті
Аренда современного офиса в центре Киева в Бизнес Центре класса " А + " по адресу улица Болсуновская ( Сергея Струтинского ). Этаж 7/19 этажного нежилого здания. Общая площадь офиса 244.07 м2. Фотографии и план...
05.02.2026
Поверх:
7/19
Загальна
250 м2
379 892 грн
Аренда современного офиса в центре Киева по адресу улица Иоанна Павла II ( Патриса Лумумбы ). Этаж 2/2 этажного нежилого здания. Общая площадь офиса 235 м2. Фотографии и планировка соответствуют реальности. Пла...
05.02.2026
Поверх:
2/2
Загальна
240 м2
561 204 грн
Аренда современного офиса в центре Киева по адресу улица Иоанна Павла II ( Патриса Лумумбы ). Этаж 2/2 этажного нежилого здания. Общая площадь офиса 222 м2. Фотографии и планировка соответствуют реальности. Пла...
05.02.2026
Поверх:
2/2
Загальна
230 м2
474 865 грн
Аренда современного офиса в центре Киева в Бизнес Центре класса " В + " по адресу Спортивная площадь. Этаж 2/7 этажного нежилого здания. Общая площадь офиса 240 м2. Фотографии и планировка соответствуют реально...
05.02.2026
Поверх:
2/7
Загальна
240 м2
228 798 грн
Популярне на сайті

ОдесаОдеса

КиївКиїв






















