Здам довгостроково офісне приміщення
Київ, р-н Шевченківський, Берестейский пр-т, 53
ID: 5279628
518 034 грн
К-ть приміщень
6
Поверх
2/6
Тип стін
цегла
Загальна площа
460 м2
Стан
житлове
Аренда современного офиса в центре Киева в новом Бизнес Центре класса " В + " по адресу Берестейский проспект ( проспект Победы ). Этаж 2/6 этажного нежилого здания. Общая площадь офиса 462 м2. Фотографии и планировка соттветствуют реальности. Планировка - open space + рабочие зоны + кабинеты/переговорные, скайп комнаты, кухня, санузлы, кладовки, серверная. Состояния - современный ремонт. Офис оснащен всем необходимым для комфортной и безопасной работы. Отличная транспортная развязка, в пешей доступности остановка общестного транспорта и станции метро Берестейская и Шулявская 10 минут пешком.Оснащения Бизнес Центра:1. Система приточно-вытяжной вентиляции.2. Инженерные системы климат-контроля.3. Автономное отопление.4. Оптоволоконные линии связи.5. Система контроля доступа.6. Противопожарная система безопасности.7. Круглосуточная физическая охрана.8. Система видеонаблюдения.9. Лифты - по 2 шт., фирмы OTIS, в каждом корпусе.10. Подземный паркинг и наземная парковка.11. 2 генератора.Коммерческие условия:Арендная ставка - 26 $/м2 с эксплуатации + НДС + коммунальные услуги.Номер оголошення на сайті компанії: RC-219-707-DP.
Створено : 05.02.2026
518 034 грн
12 000 $
Радион Попов
посередник
Створено : 05.02.2026
Переглянуті
Аренда современного офиса в современном Бизнес Центре класса " А " по адресу улица Марка Безручка. Этаж 3/5 этажного нежилого здания. Общая площадь офиса 473 м2. Фотографии и планировка соответствуют реальности...
05.02.2026
Поверх:
3/5
Загальна
470 м2
733 838 грн
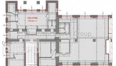
Аренда современного офиса в центре Киева в Бизнес центре класса " В + " по адресу улица Николая Пимоненко. Этаж 3/6 этажного нежилого здания. Полезная площадь офиса 398.8 м2. Арендуемая площадь 446.66 м2 ( 12 %...
05.02.2026
Поверх:
3/6
Загальна
450 м2
284 919 грн
Аренда просторного офиса в центре Киева в Бизнес Центре класса " В " по адресу Бульвар Тараса Шевченко. Этаж 3/9 этажного нежилого здания. Общая площадь офиса 457.3 м2. Фотографии и планировка соответствуют реа...
05.02.2026
Поверх:
3/9
Загальна
460 м2
431 695 грн
Аренда просторного офиса в ЖК бизнес класса по адресу улица Глубочицкая. Этаж 2/4 этажного нежилого здания. Общая площадь офиса 463 м2. Фотографии и планировка соответствуют реальности. Планировка - open space ...
05.02.2026
Поверх:
2/4
Загальна
470 м2
250 383 грн
Популярне на сайті

ОдесаОдеса

КиївКиїв










