Здам довгостроково офісне приміщення
Київ, р-н Шевченківський, Владимирская ул., 10
ID: 5279629
323 771 грн
К-ть приміщень
10
Поверх
3/4
Тип стін
цегла
Загальна площа
500 м2
Стан
житлове
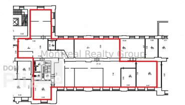
Аренда современного офиса в центре Киева в Бизнес Центре класса " В " по адресу улица Владимирская. Этаж 3/4 этажного нежилого здания. Общая площадь офиса 500 м2. Фотографии и планировка соответствуют реальности. Планировка - open space + рабочие зоны + кабинеты/переговорные, кухня, санузлы, кладовки, серверная, балконы. Состояния - современный ремонт. Офис оснащен всем необходимым для комфортной и безопасной работы. Отличная транспортная развязка, в пешей доступности остановка общественного транспорта и станции метро Золотые Ворота и Майдан Независимости 10 минут пешком.Вакантность в этом БЦ - 260 м2, 680 м2 ( 940 м2 ), 500 м2.Оснащения Бизнес Центра:1. Система кондиционирования.2. Система приточно-вытяжной вентиляции.3. Оптоволоконные линии связи.4. Система контроля доступа.5. Противопожарная система безопасности.6. Круглосуточная физическая охрана.7. Видеонаблюдение.8. Большая наземная парковка.9. Бесперебойное электричество.Коммерческие условия:Арендная ставка - 15 $/м2 с эксплуатации + НДС + коммунальные услуги.Номер оголошення на сайті компанії: RC-219-708-DP.
Створено : 05.02.2026
323 771 грн
7 500 $
Радион Попов
посередник
Створено : 05.02.2026
Переглянуті
Аренда просторного офиса в центре Киева в Бизнес Центре класса " А " по адресу улица Богдана Хмельницкого. Этаж 5/8 этажного нежилого здания. Полезная площадь офиса 410 м2. Арендуемая площадь 487.9 м2 ( 19 % ко...
05.02.2026
Поверх:
5/8
Загальна
490 м2
537 460 грн
Аренда современного офиса в центре Киева в Бизнес Центре класса " В " по адресу улица Дегтяревская. Этаж 2/6 этажного нежилого здания. Общая площадь офиса 506 м2. Фотографии и планировка соответствуют реальност...
05.02.2026
Поверх:
2/6
Загальна
500 м2
215 848 грн
Аренда просторного офиса в центре Киева в Бизнес Центре класса " В + " по адресу улица Дегтяревская. Этаж 3/9 этажного нежилого здания. Полезная площадь офиса 452.3 м2. Арендуемая площадь 497.3 м2 ( 10 % коэффи...
05.02.2026
Поверх:
3/9
Загальна
500 м2
280 602 грн
Аренда просторного офиса в центре Киева в Бизнес Центре класса " В + " по адресу улица Бульварно-Кудрявская. Этаж 2/5 этажного нежилого здания. Общая площадь офиса 492.43 м2. Фотографии и планировка соответству...
05.02.2026
Поверх:
2/5
Загальна
500 м2
341 039 грн
Популярне на сайті

ОдесаОдеса

КиївКиїв



















