Продається 1-кімнатна квартира
, Тургенєве, Надрічна вул.
ID: 5280434
2 352 738 грн
(51 146 за м2)
Кіл-ть кімнат
1
Поверх
13/15
Тип стін
цегла
Загальна площа
46 м2
Площа кухні
17 м2
Стан
житлове
Тип нерухомості
Вторинний ринок
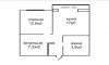
Продається простора світла 1, 5 к. квартира з хорошим ремонтом в сучасному ЖК Княгинин!( 2-га черга, 22 секція) Розташована в закритому від автомобільного руху дворі, з великими зонами відпочинку для всієї родини. Ідеальне місце для життя, всього 3 хв до річки та 7 хв до центру! Поверх 13 з 15 Площа 46, 3 м2 Кухня 17 м2 Спальня 12, 6 м2 Гостинна 7, 2 м2 Ванна 3, 84 м2 Лоджія 3м2 Особливістю планування є додаткова невелика гостинна (7, 2м2, ) яка може слугувати дитячою кімнатою! Продуманий ремонт з якісних матеріалів! 4 контури теплої підлоги. Конденсаційний котел Italterm Smart. Прокладено дві траси під кондиціонери(кухня, спальня) Комунукації всі запущені, будинок зданий, можна облаштовувати меблями і заселятися. У всіх сусідів ремонт зроблений, нерви будуть збережені:) Чудовий вигляд на бульвар Молодості! Квартира внутрішня, на сонячну сторону, світла та тепла! Поблизу є невелика лісопаркова зона та річка, багато місць для відпочинку на свіжому повітрі, прогулянок і заняття спортом. В цьому ж жк є дитячий садок, салони краси, магазини, кафе, супермаркет Таврія В, неподалік школа. Секції будівель утворюють затишні двори, в яких обладнуються спортивні та дитячі майданчики. Двори без авто завдяки підземному паркінгу! Ще діє договір переуступки.
Створено : 05.02.2026
2 352 738 грн
(51 146 за м2)
54 500 $
(1 185 за м2)
Оксана
посередник
Створено : 05.02.2026
Переглянуті
Продається 1 км квартира в Івано-франківську в ЖК Урожайна 39 кВ 2 поверх Сирець...
05.02.2026
Кімнат
1
Поверх:
2/9
Загальна
39 м2
Кухня
13 м2
1 623 173 грн
Продається 1 кімнатна В ЖК Silver Від надійного забудовника. БК Квартал. Площа квартири -44 м.кв Площа кухні- 13.7м.кв + лоджія 4.8 м.кв З чудовим видом з вікон. Розміщена на 8 /10 поверсі. Монолітно каркасний ...
05.02.2026
Кімнат
1
Поверх:
8/10
Загальна
44 м2
Кухня
14 м2
1 381 424 грн
Продам 1км квартиру з ремонтом в центральному районі міста ЖК Княгинин...
05.02.2026
Кімнат
1
Поверх:
8/12
Загальна
40 м2
Кухня
15 м2
2 978 696 грн
Продам дві однокімнатних квартири в ЖК Княгинин 30 секція - планова здача 4 квартал 2026 р .(збудовано 5 поверхів) поверх 2(вікна на приватний сектор) і є 3 поверх (площа 37.3 м і вікна в двір) Доки немає внутр...
05.02.2026
Кімнат
1
Поверх:
2/12
Загальна
38.5 м2
Кухня
12 м2
1 381 424 грн
Популярне на сайті

ОдесаОдеса

КиївКиїв




















