Продається 3-кімнатна квартира
, Тургенєве, Коновальця вул.
ID: 5280671
3 904 178 грн
(51 371 за м2)
Кіл-ть кімнат
3
Поверх
8/8
Тип стін
цегла
Загальна площа
76 м2
Площа кухні
24.6 м2
Стан
житлове
Тип нерухомості
Вторинний ринок
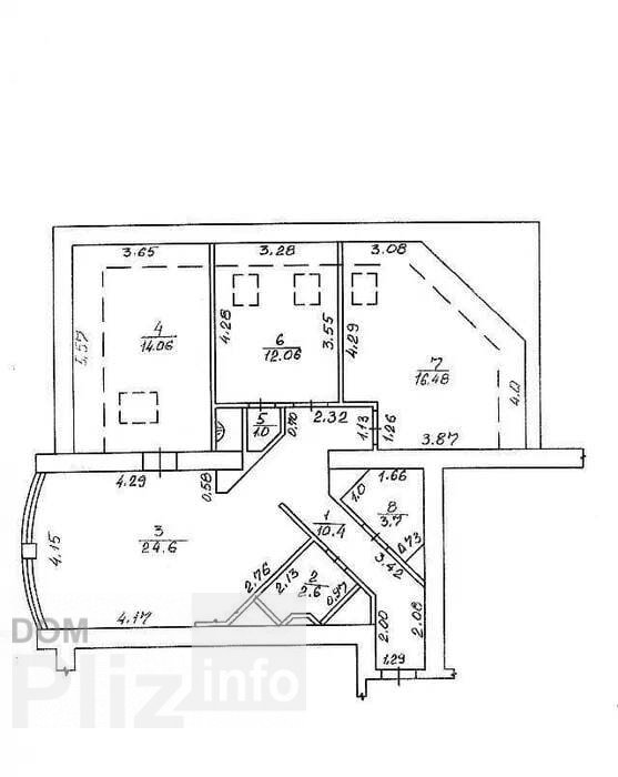
Пропоную простору квартиру по вул. Коновальця 77, Івано-Франківськ, центр міста, з вікна кухні видно ратушу, будинок побудований у 2000 рр. Хороший район з добре розвинутою інфраструктурою. Поруч обласна дитяча лікарня, міська дитяча лікарня, роддом, супермаркет Велмарт, розважальні заклади, поштові відділення, банки, магазини, навчальні заклади та садочки. Квартира розташована на 8/8 поверсі, ліфт працює, над житлом (площа коридору, ванни і туалету - вони роздільні) є комора. Площа квартири - 76 м кв., Три просторі окремі кімнати з добротним ремонтом, підігрів підлоги є в кухні, коридорі і ванні з туалетом.. Кухня - 24,6 м кв., з технікою та меблями, неймовірно красива і велика. У вітальні є камін, підключено телебачення та інтернет і потайна гардероба. Спальня укомплектована повноцінним двоспальним ліжком та шафою, комодом, дзеркало. Дитяча кімната теж обмебльована і має гардеробну. Санвузол роздільний.
Створено : 05.02.2026
3 904 178 грн
(51 371 за м2)
90 438 $
(1 190 за м2)
Оксана
посередник
Створено : 05.02.2026
Переглянуті
Продам єдину 3-кімнатну квартиру в ЖК Light Home від забудовника VD Group за адресою м. Івано-Франківськ, вул. Софрона Мудрого, 29а. Будинок зданий в експлуатацію, стан квартири — сирець! Житловий комплекс бізн...
05.02.2026
Кімнат
3
Поверх:
6/11
Загальна
78.6 м2
Кухня
35 м2
4 377 387 грн
3 кім квартира в ЖК Манхеттен, в зданому та обжитому будинку ЖК Манхеттен - Будинок Бізнес класу. - Поверх: 13 з 16 - Загальна площа: 83 м #178; - Планування: кухня-студія + 2 окремі кімнати та велика гардеробн...
05.02.2026
Кімнат
3
Поверх:
13/16
Загальна
83 м2
Кухня
30 м2
6 324 332 грн
Продаж дизайнерської 3-кімнатної квартири з преміальним ремонтом | Івано-Франківськ Пропонується сучасна квартира площею 66 м #178; у новобудові на 8 поверсі з 14. Функціональне планування: 2 окремі спальні + ...
05.02.2026
Кімнат
3
Поверх:
8/11
Загальна
66 м2
Кухня
14 м2
5 128 537 грн
Продається видова, панорамна 3-х кімнатна квартира у ЖК Паркова алея м.Івано-Франківськ. Загальна площа - 85 м.кв. Новобудова. Стан -сирець. 9 поверх. Здана в експлуатацію. Дуже гарне планування. У ясну погод...
05.02.2026
Кімнат
3
Поверх:
9/11
Загальна
85 м2
Кухня
15 м2
3 669 408 грн
Популярне на сайті

ОдесаОдеса

КиївКиїв














