Продається 2-кімнатна квартира
Одеса, р-н Приморський, Лидерсовский бульвар
ID: 5283142
23 311 530 грн
(149 433 за м2)
Кіл-ть кімнат
2
Поверх
4/18
Тип стін
цегла
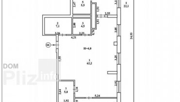
Загальна площа
156 м2
Житлова площа
71 м2
Площа кухні
20 м2
Стан
житлове
Тип нерухомості
Вторинний ринок
№3193 Предлагаем к продаже шикарную квартиру в престижном жилом комплексе "Мерседес" рядом с парком Шевченко на бульваре Лидерсовский. Располагается на 4 этаже с прекрасным видом на море. Распланирована на 2 спальни,кухню студию. Предусмотрено 2 сан узла. 2 гардеробные комнаты. Квартира с современным ремонтом, выполненном по дизайнерскому проекту. Полностью укомплектована итальянской мебелью и бытовой техникой мировых брендов. Система кондиционирования воздуха. Облагороженная придомовая территория с зонами для отдыха и развлечений. Круглосуточная охрана и видеонаблюдение. Рядом спуск к морю и пляж Ланжерон. Прекрасный район для проживания.
Створено : 05.02.2026
23 311 530 грн
(149 433 за м2)
540 000 $
(3 462 за м2)
Анна
посередник
Створено : 05.02.2026
Переглянуті
2/2., S=153 кв.м., полезная 111кв.м. Прихожая 6м, тамбур 5м., холл 29 кв.м. Сделан качественный ремонт. Отремонтирован фасад, парадная. Новая металлическая лестница, новые коммуникации и приборы учета, отоплени...
05.02.2026
Кімнат
2
Поверх:
2/2
Загальна
153 м2
Житлова
31 м2
Кухня
12 м2
4 748 645 грн
Предлагается к продаже эксклюзивный пентахус 162м2 в клубном доме ЖК Pierre – это малоэтажный дом в французском стиле, расположенный в историческом центре Одессы. Прекрасная планировка. двухсторонняя квартира с...
05.02.2026
Кімнат
2
Поверх:
10/10
Загальна
162 м2
Житлова
98 м2
Кухня
26 м2
15 389 927 грн
Продается роскошная двухкомнатная квартира с кухней-гостиной в новом жилом комплексе на берегу моря.Итальянская мебель, дизайнерский ремонт, панорамное остекление и вид на море из каждого окна делают эту кварти...
05.02.2026
Кімнат
2
Поверх:
3/20
Загальна
150 м2
Житлова
40 м2
Кухня
50 м2
13 382 545 грн
28954. Продам шикарную квартиру в пер. Мукачевский.Общая площадь 162 кв.м. Распланирована на 2 спальни, кухня-студия, 2 сан узла.Стильный ремонт по дизайнерскому проекту. Просторная терраса с видом на море.Клуб...
05.02.2026
Кімнат
2
Поверх:
10/11
Загальна
162 м2
Житлова
50 м2
Кухня
64 м2
10 792 375 грн
Популярне на сайті

ОдесаОдеса

КиївКиїв












