Продається будинок
Овідіопольський район, Прилиманське, Яблоневая
ID: 5283186
2 158 475 грн
(22 484 за м2)
К-ть приміщень
2
Поверховість
1/2
Тип стін
цегла
Загальна площа
96 м2
Житлова площа
32 м2
Площа кухні
25 м2
Стан
житлове
Тип нерухомості
Будинок
Ділянка:
2
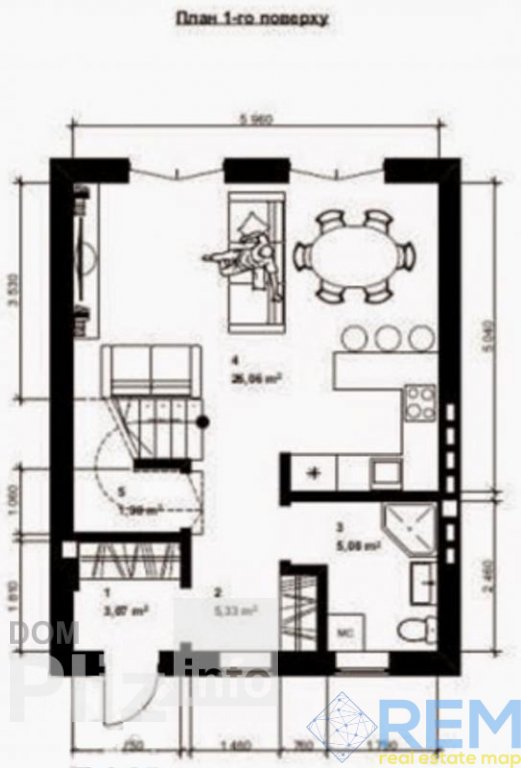
№3644. . . Предлагаем к продаже просторный двухэтажный таунхаус всего в 7 км. от города Одесса в пос. Прилиманское. Общая площадь 96 кв.м. Первый уровень: кухня-гостиная, санузел, две гардеробные. Второй уровень: две спальни, санузел. Третий уровень эксплуатируемая крыша с оборудованной зоной отдыха. Состояние от строителей позволит новым собственникам сделать ремонт на свой вкус. Индивидуальное отопление. Коммуникации заведены. Есть свой огороженный дворик с зоной барбекю, где Вы можете, сами или с друзьями, наслаждаться зеленью окружающей местности и вдыхать свежий загородный воздух. Также рядом с домом предусмотрено парковочное место для Вашего авто, что позволит Вам сэкономить деньги на стоянке. И все эти прелести находятся в ближайшей черте от города, что дает с легкостью добраться до центра всего за 20 минут. Не упусти такой шанс - купить дом по цене квартиры!
Створено : 05.02.2026
2 158 475 грн
(22 484 за м2)
50 000 $
(521 за м2)
Анна
посередник
Створено : 05.02.2026
Переглянуті
Капитальный 2-х этажный жилой дом из 4-х комнат общей площадью 100 кв.м. со всеми удобствами, мебель, ремонт. Стены из камня толщиной 60см, перекрытия - железобетонные, автономное водо-, электро- и газовое тепл...
05.02.2026
Поверховість:
1
Загальна
100 м2
6 475 425 грн
В продаже дом в Прилиманском. 9 соток земли. На участке два дома. Один жилой, все условия есть в доме, туалет, ванна. Хороший ремонт. Вложений не требует. Есть кладовка и кочегарка. Второй дом новой постройки в...
05.02.2026
Поверховість:
1
Загальна
100 м2
Житлова
48 м2
Кухня
19 м2
3 453 517 грн
Предлагается к продаже таунхаус от строителей в Прилимканском пгт Авангарт. Два этажа, общая площадь 98,39 кв.м. На участок заведены вода, свет, септик. Находится на Сухом лимане. Состояние от строителей, начат...
05.02.2026
Поверховість:
1
Загальна
98 м2
Житлова
39.1 м2
2 806 018 грн
Предлагается к продаже таунхаус от строителей в Прилимканском пгт Авангарт. Два этажа, общая площадь 101,2 кв.м. На участок заведены вода, свет, септик. Находится на Сухом лимане. Состояние от строителей, начат...
05.02.2026
Поверховість:
1
Загальна
101.2 м2
Житлова
40.8 м2
2 676 509 грн
Популярне на сайті

ОдесаОдеса

КиївКиїв
















