Продається будинок
Одеса, р-н Приморський, Французский бульвар
ID: 5283511
64 754 250 грн
(134 905 за м2)
К-ть приміщень
5
Поверховість
1/2
Тип стін
цегла
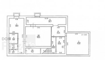
Загальна площа
480 м2
Житлова площа
350 м2
Стан
житлове
Тип нерухомості
Будинок
Ділянка:
10
9985. . . Предлагаем к продаже новый шикарный дом в закрытом кооперативе "Лагуна" на Французском бульваре. Выполнен в 2 этажа. Распланирован на 4 спальни, кабинет. Предусмотрено 3 сан узла. Выполнен капитальный ремонт с дорогостоящих материалов. Есть бассейн. Гараж на 2 авто. Располагается на участке, площадью 10 соток. Гос акт. Облагороженный двор с зелеными насаждениями. Один из самых престижных районов города вблизи моря.
Створено : 05.02.2026
64 754 250 грн
(134 905 за м2)
1 500 000 $
(3 125 за м2)
Анна
посередник
Створено : 05.02.2026
Переглянуті
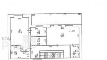
28997. Продам 3-х этажный дом на Французском бульваре в Королевских Садах.Общая площадь 670 кв.м. Состяоние позволит сделать ремонт по индивидуальному проекту. Выполнен из красного кирпича в 4 уровня. Есть гара...
05.02.2026
Поверховість:
1
Загальна
670 м2
Житлова
300 м2
Кухня
50 м2
Ділянка
6
28 060 175 грн
28895. Продам 3-х этажный дом на Французском бульваре.Общая площадь 1200 кв.м. Распланирован на 8 комнат. Состояние позволит новым собственникам сделать ремонт по индивидуальному проекту. Все городские коммуник...
05.02.2026
Поверховість:
1
Загальна
1200 м2
Житлова
800 м2
Кухня
50 м2
Ділянка
11
94 972 900 грн
27820. В продаже трехуровневый двухэтажный дом на Маразлиевской. Две входные двери с фасада. Локация одна из лучших в городе - в пяти минутах парк Шевченко, пляж Ланжерон, развитая инфраструктура района....
05.02.2026
Поверховість:
1
Загальна
460 м2
Житлова
300 м2
Кухня
60 м2
Ділянка
2
25 470 005 грн
26832 Продам новый дом в Аркадии .Общая площадь дома 205 кв.м. Участок, площадью 3 сотки. 1 этаж: кухня - студия, гостиная и кабинет. 2 этаж: 3 спальни, 2 гардеробные.Выполнен качественный ремонт. Гараж под вс...
05.02.2026
Поверховість:
1
Загальна
205 м2
Житлова
145 м2
Кухня
30 м2
Ділянка
3
12 303 308 грн
Популярне на сайті

ОдесаОдеса

КиївКиїв



















