Продається 1-кімнатна квартира
Одеса, р-н Київський, Люстдорфская дорога
ID: 5283564
1 714 865 грн
(31 757 за м2)
Кіл-ть кімнат
1
Поверх
5/5
Тип стін
цегла
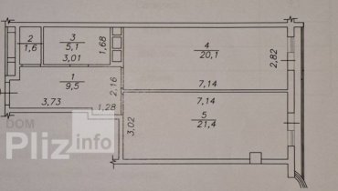
Загальна площа
54 м2
Житлова площа
15 м2
Площа кухні
25 м2
Стан
житлове
Тип нерухомості
Вторинний ринок
10701. . . Предлагаем к продаже 1-комнатную квартиру в новом малоквартирном доме на Таирова. Состояние от строителей, в подарок покупателю- дизайн проект. Общая площадь 54 кв.м. Автономное отопление от 2-х контурного котла.Облагороженная охраняемая территория. Хорошо развитый район с отличной инфраструктурой и транспортной развязкой.
Оновлене: 21.04.2026
1 714 865 грн
(31 757 за м2)
39 000 $
(722 за м2)
Анна
посередник
Оновлене: 21.04.2026
Переглянуті
В продаже просторная 1-комнатная квартира в новом ЖК на Таирова. Просторная кухня-гостиница с выходом на застекленный балкон. Отдельная спальня. Из окон открывается вид на море и частный сектор. Современные ско...
12.05.2026
Кімнат
1
Поверх:
8/24
Загальна
44.5 м2
Житлова
17 м2
Кухня
19 м2
2 858 109 грн
Програми / Ваучер / Сертифікат. Продаж однокімнатної квартири в новому будинку. Академіка Корольова/Вільямса. 2022 р.б.. Квадрат ринку Південний. 9/16, вікна у двір, 53 кв. кімната 21,7 кв.м., кухня 14,5 кв.м. ...
09.05.2026
Кімнат
1
Поверх:
9/16
Загальна
53 м2
Житлова
21.7 м2
Кухня
14.5 м2
1 890 749 грн
Програми / Ваучер / Сертифікат. Продам 1 кімнатну квартиру на Таїрова в Жемчужному кварталі від Кадору. 46 кв.м. Кухня з виходом на балкон. Кімнату обєднали з кухнею, але за бажання можна відновити перестінок. ...
08.05.2026
Кімнат
1
Поверх:
10/18
Загальна
46 м2
Житлова
24 м2
Кухня
10 м2
2 198 545 грн
Элегантные апартаменты с прямым видом на море в Одессе Продается современная квартира с безупречным дизайнерским ремонтом, где каждый квадратный метр продуман для комфортной жизни. Главная особенность — панорам...
12.05.2026
Кімнат
1
Поверх:
11/26
Загальна
55.03 м2
Житлова
15 м2
Кухня
20 м2
5 716 217 грн
Популярне на сайті

ОдесаОдеса

КиївКиїв













