Продається офісне приміщення
Одеса, р-н Приморський, Довженко
ID: 5284726
8 633 900 грн
(20 557 за м2)
Поверх
1/цокольний
Тип стін
цегла
Загальна площа
420 м2
Стан
житлове
Тип нерухомості
Офісне приміщення
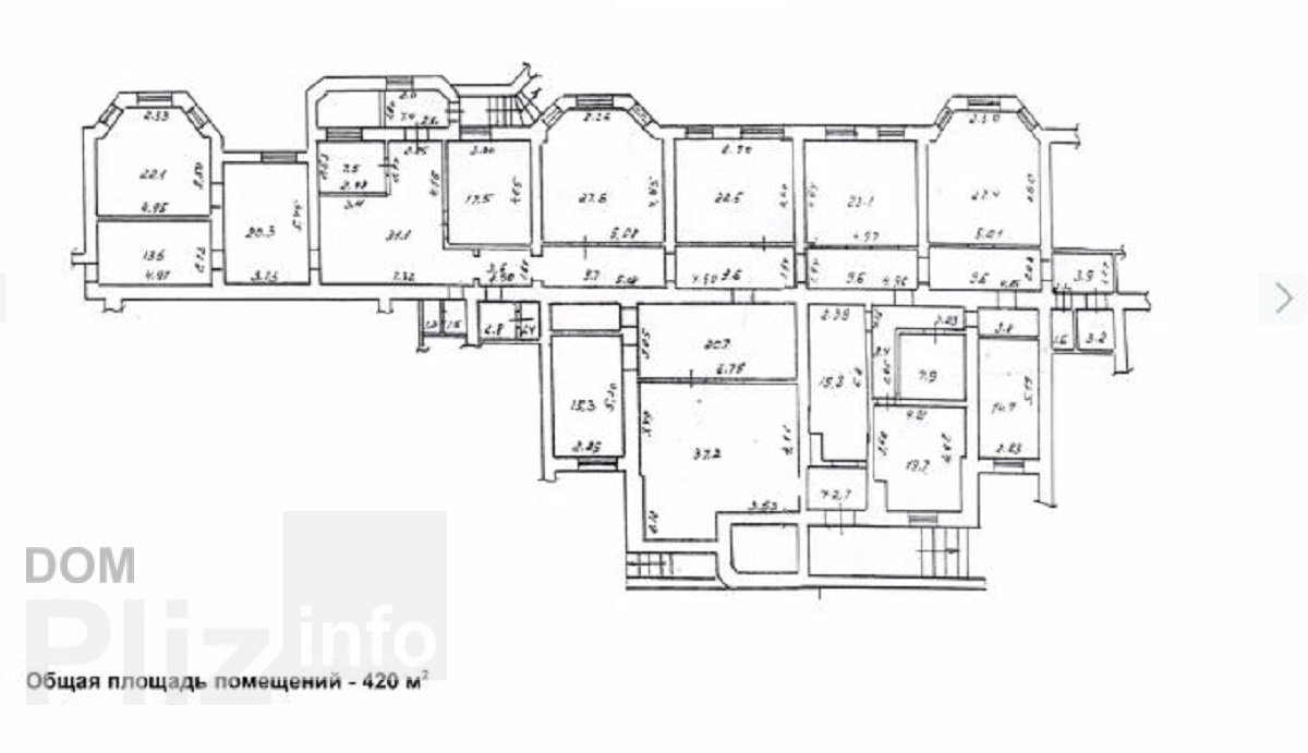
19967 Предлагаем к продаже офисное помещение в элитном комплексе "Дома Каркашадзе. Общая площадь 420 кв.м. Высокие потолки. В помещении 11 кабинетов. Есть 3 сан узла. Укомплектовано необходимой мебелью. На окнах установлены решетки. Кондиционеры. Оборудована пожарная и охранная сигнализация. Охраняемая благоустроенная территория. Развитый район. Есть возможность приобрести помещение, меньшей площади.
Створено : 05.02.2026
8 633 900 грн
(20 557 за м2)
200 000 $
(476 за м2)
Анна
посередник
Створено : 05.02.2026
Переглянуті
В продаже коммерческое помещение под любой вид деятельности в элитном доме в Приморском районе. Цокольный этаж с окнами, 8-ми этажного дома. Отдельный вход с улицы Довженко, дополнительно 2 входа со двора; Высо...
05.02.2026
Поверх:
1/8
Загальна
420 м2
8 633 900 грн
В продаже готовый бизнес в центре города. Общей площадью 830 кв.м. Состоит из отдельно стоящего, 3 этажного офисного здания площадью 430 кв.м и производственно складским помещением 400 кв.м. Просторный конферен...
05.02.2026
Поверх:
1/3
Загальна
430 м2
Житлова
140 м2
Кухня
20 м2
14 461 783 грн
Предлагается к продаже нежилое помещение в Центре (подвал), ул. Еврейский. Общей площадью 410кв.м. Помещение можно разделить на 120кв.м. и 290кв.м. Два входа с фасада и со двора. Первый вход фасад с улицы Еврей...
05.02.2026
Загальна
411.7 м2
3 885 255 грн
Популярне на сайті

ОдесаОдеса

КиївКиїв














