Продається 2-кімнатна квартира
Тернопіль
ID: 5284770
3 516 672 грн
(38 225 за м2)
Кіл-ть кімнат
2
Поверх
9/10
Тип стін
цегла
Загальна площа
92 м2
Площа кухні
35 м2
Стан
житлове
Тип нерухомості
Вторинний ринок
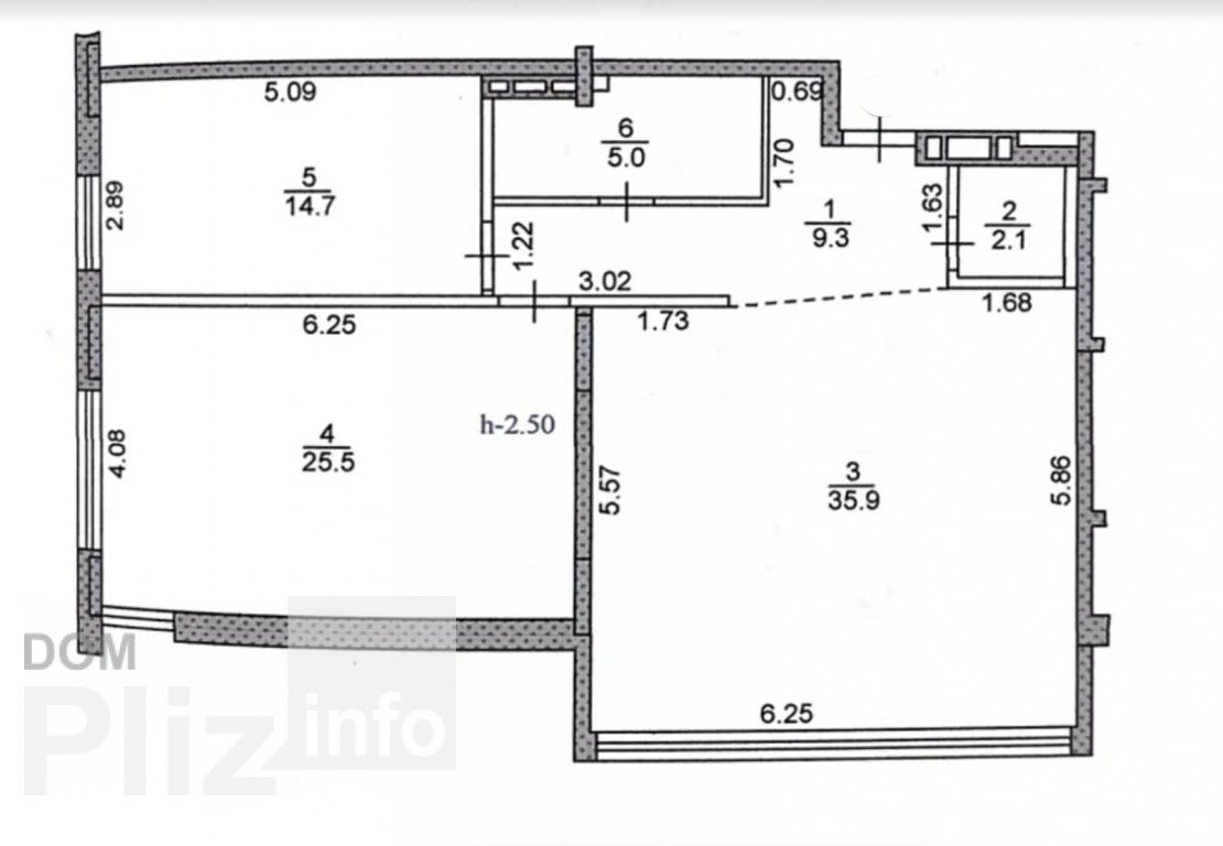
Продається простора квартира у новому та обжитому житловому комплексі на проспекті С.Бандери. Загальна площа 92,5 кв.м, зручне планування, великі кімнати. Квартира сира, проведені чорнові роботи, змонтовано систему теплої підлоги по всій квартирі. Зроблена вся електрика і поштукатурені стіни. Підготовлені виводи та кріплення ззовні під кондиціонери в залі та спальні. Поруч з будинком є вся необхідна інфраструктура.
Оновлене: 03.05.2026
3 516 672 грн
(38 225 за м2)
80 000 $
(870 за м2)
ВІСОН агенція нерухомості
посередник
Оновлене: 03.05.2026
Переглянуті
Пропонується чудова квартира у новому та обжитому будинку по вулиці Білогірська. Загальна площа 88 кв.м, квартира дворівнева. На першому поверсі велика кухня-студія з панорамними вікнами, з кухні вихід на балко...
05.05.2026
Кімнат
2
Поверх:
10/10
Загальна
88 м2
3 736 464 грн
Продається простора квартира по вулиці Чернівецька. Будинок цегляний, обжитий. Квартира розташована на зручному, високому першому поверсі. Над комерційними приміщеннями. Загальна площа 88 кв.м, зручне плануван...
03.05.2026
Кімнат
2
Поверх:
1/6
Загальна
88 м2
Житлова
43 м2
Кухня
15 м2
2 637 504 грн
Продається 2 кімнатна квартира з сучасним плануванням і ремонтом! Кухня-студія+дві окремі кімнати. Все повністю облаштовано для комфортного проживання. Встановлено індивідуальне опалення+ тепла підлога. В наявн...
03.05.2026
Кімнат
2
Поверх:
10/10
Загальна
84 м2
Житлова
38 м2
Кухня
18 м2
4 703 549 грн
Пропонується на продаж квартира у новому та обжитому будинку на провулку Цегельний. Квартира простора, площа 83 кв.м, велика кухня-вітальня, дві окремі кімнати, роздільний санвузол. Індивідуальне опалення, зовн...
03.05.2026
Кімнат
2
Поверх:
8/10
Загальна
83 м2
Житлова
55 м2
Кухня
25 м2
4 967 299 грн
Популярне на сайті

ОдесаОдеса

КиївКиїв
















