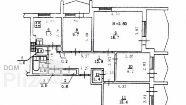
Продається 4-кімнатна квартира
Одеса, р-н Київський, Вильямса Академика
ID: 5285957
2 719 679 грн
(28 330 за м2)
Кіл-ть кімнат
4
Поверх
8/16
Тип стін
цегла
Загальна площа
96 м2
Житлова площа
65 м2
Площа кухні
8 м2
Стан
житлове
Тип нерухомості
Вторинний ринок
25941 Продам 4-х комнатную квартиру в сотовом проекте на ул. Ак. Вильямса.Располагается на среднем этаже. Просторная раздельная планировка. Лоджии раскрыты и утеплены. Жилое состояние. Установлена кухонная мебель. Отличный район для жизни. Рядом с домом школы, детские сады.
Створено : 05.02.2026
2 719 679 грн
(28 330 за м2)
63 000 $
(656 за м2)
Анна
посередник
Створено : 05.02.2026
Переглянуті
Продаж 4-кімнатної квартири в цегляному будинку. Ільфа та Петрова. Свіжий капремонт, все нове, вбудована кухня, техніка. Кухню збільшено за рахунок лоджії. Вітальня, 3 спальні. Підігрів підлоги, нові труби, сен...
05.02.2026
Кімнат
4
Поверх:
8/10
Загальна
88 м2
Житлова
51 м2
Кухня
14 м2
2 806 018 грн
Продаж 4-кімнатної квартири. Цетр Таїрова. Проспект Ак. Глушко / Ринок Південний. 13/16. 88 кв.м., з кожної кімнати лоджія. Капремонт, утеплена з фасаду, металопластикові вікна. Повністю укомплектована всім нео...
05.02.2026
Кімнат
4
Поверх:
13/16
Загальна
88 м2
Житлова
50 м2
Кухня
8 м2
3 237 713 грн
Продаж 4 кімнатної квартири на Таїрова. Академіка Корольова / Обл. ДАІ. Цегла, спецпроект. Переплановано на кухню студію 38,1 кв.м. + 3 спальні. Капремонт із заміною труб та електропроводки, біметалічні радіато...
05.02.2026
Кімнат
4
Поверх:
8/10
Загальна
90 м2
Житлова
40 м2
Кухня
38.1 м2
3 842 086 грн
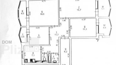
Продажа 4 комнатной квартиры на Таирова, раздельные хода, гостиная 19 кв.м. + 3 спальни: 15,7 + 11,3 + 9,3. Лоджия из каждой комнаты. В комнатах наборной паркет, столярка дерево / лак. Рядом детский сад, школа ...
05.02.2026
Кімнат
4
Поверх:
8/12
Загальна
100.6 м2
Житлова
55.3 м2
Кухня
7 м2
2 676 509 грн
Популярне на сайті

ОдесаОдеса

КиївКиїв













