Продається 2-кімнатна квартира
Одеса, р-н Київський, Глушко Академика пр., 2
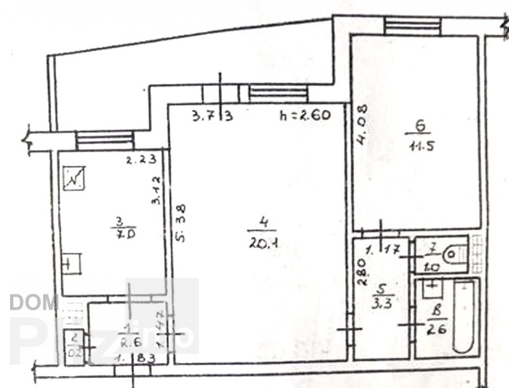
ID: 5286932
1 813 119 грн
(34 210 за м2)
Кіл-ть кімнат
2
Поверх
14/16
Тип стін
цегла
Загальна площа
53 м2
Житлова площа
32 м2
Площа кухні
8 м2
Стан
житлове
Тип нерухомості
Вторинний ринок
Квартира после капитального ремонта, с/у разд.соврем. облицовка,натяжной потолок, пол плитка и ламинат, панорама моря из всех окон от Пионерской до 16ст.Б.Фонтана, есть собственное место №7 на крытой охраняемой автостоянке Каскад 166, продается с встроенной кух. мебелью.
Створено : 05.02.2026
1 813 119 грн
(34 210 за м2)
42 000 $
(792 за м2)
БЕСТТ НЕДВИЖИМОСТЬ
посередник
Створено : 05.02.2026
Переглянуті
В продаже двухкомнатная квартира на Таирова Киевский район. Общая площадь 60 кв.м. Кухня 9 кв. м. Санузел совмещен. Индивидуальное отопление АОГВ. Установлен бойлер. Квартира под ремонт. Хорошая транспортная ра...
05.02.2026
Кімнат
2
Поверх:
1/1
Загальна
60 м2
Житлова
40 м2
Кухня
9 м2
1 381 424 грн
Продается 2 комнатная квартира, «Финский проект», ремонту 3 года, квартира на земле, металлопластиковое остекление, внутренняя столярка дерево с витражами, потолки дерево, обои шелковые, санузел современно обли...
05.02.2026
Кімнат
2
Поверх:
1/2
Загальна
55 м2
Житлова
30 м2
Кухня
8 м2
2 460 662 грн
Продам квартиру в закрытом, охраняемом коттеджном городке с видом на море. Квартира с шикарным дорогим ремонтом, оригинальными скошенными потолками, с великолепной открытой террасой 8 кв. метр с видом на море. ...
05.02.2026
Кімнат
2
Поверх:
4/4
Загальна
58 м2
Житлова
24 м2
Кухня
26 м2
2 585 853 грн
Продам 2-х комнатную квартиру в Одессе на Таирова.Второй ряд домов. Чешский проект, металлопластиковое остекление окон и балкона. Санузел раздельный современно облицован, новая сантехника, приборы учёта, новый ...
05.02.2026
Кімнат
2
Поверх:
4/9
Загальна
50 м2
Житлова
30 м2
Кухня
9 м2
3 237 713 грн
Популярне на сайті

ОдесаОдеса

КиївКиїв

















