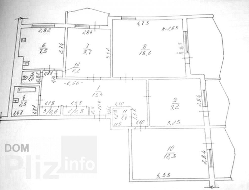
Продається 4-кімнатна квартира
Одеса, р-н Київський, Жукова Маршала пр., 87
ID: 5286935
2 050 551 грн
(24 124 за м2)
Кіл-ть кімнат
4
Поверх
2/16
Тип стін
цегла
Загальна площа
85 м2
Житлова площа
55 м2
Площа кухні
8 м2
Стан
житлове
Тип нерухомості
Вторинний ринок
Продам 4-комнатную в Сотовом проекте на Маршала Жукова (Проспект Небесной Сотни) / Левитана, 2/16, раздельные хода, 4 лоджии. Отличное расположение дома, рядом школа, детская поликлиника, супермаркет, транспорт в любую точку города.
Створено : 05.02.2026
2 050 551 грн
(24 124 за м2)
47 500 $
(559 за м2)
БЕСТТ НЕДВИЖИМОСТЬ
посередник
Створено : 05.02.2026
Переглянуті
Продам красивую 4-х комнатную квартиру 80 кв. метров в самом центре Таирова, район Панорамы. Кирпичный дом. Квартира в отличном состоянии. Выполнен качественный ремонт. Постелен теплый пол. Установлена сигнализ...
05.02.2026
Кімнат
4
Поверх:
9/9
Загальна
80 м2
Житлова
57 м2
Кухня
10 м2
2 892 357 грн
Продам шикарную четырехкомнатную квартиру в центре Таирова. Общая площадь квартиры 85 метров. Квартира перепланирована в 3 спальни и кухню столовую. Сотовый проект. Из каждой комнаты есть лоджия. Все лоджии зас...
05.02.2026
Кімнат
4
Поверх:
7/16
Загальна
85 м2
Житлова
55 м2
Кухня
20 м2
3 712 577 грн
Продается 4 комнатная квартира в чистом жилом состоянии. Поменяна проводка, лоджии застелены, в одной комнате лоджия раскрыта. Санузел облицован, на кухне плитка на стенах и рабочей поверхности. В большой комна...
05.02.2026
Кімнат
4
Поверх:
2/16
Загальна
85 м2
Житлова
60 м2
Кухня
7 м2
2 374 323 грн
В продаже четырех комнатная квартира перепланирована в кухню гостиную и три раздельные комнаты. Санузел увеличен, совмещен. Выполнен капитальный качественный ремонт в светлых тонах. На полу плитка и ламинат. Но...
05.02.2026
Кімнат
4
Поверх:
16/16
Загальна
84 м2
Житлова
49.7 м2
Кухня
17.3 м2
3 021 822 грн
Популярне на сайті

ОдесаОдеса

КиївКиїв










